Gantry House - это превращение милого коттеджа в крытый-открытый / дом / склад / мастерскую для семьи, где можно активно отдыхать, что-то делать и собирать всевозможные вещи - горшочные растения, игрушки, предметы искусства, продукты питания, кулинарию и "сокровища" из магазина. Сохраняя свой скромный вид коттеджа на улице, дом расширяется за счёт заднего двора с просторными, солнечными, открытыми жилыми помещениями, простыми и удобными.

Поскольку один из заказчиков является строителем, была огромная возможность пересмотреть и развить многие идеи и детали на месте во время строительства, что было и благословением, и проклятием! В результате работы проходили сплошь и рядом в течение длительного периода строительства, составляющего 2+ года. Вышеупомянутые факторы заставляли авторов думать быстро, но позволяли постоянно вносить изменения в конструкцию, чтобы адаптировать дом к семье. Все общие действия в доме открыты друг для друга, но аккуратно экранированы, чтобы члены семьи могли иметь собственное пространство и при этом оставаться вместе.Само строительство дома также доставляет удовольствие, так как его открытая структура, сырьё, открытые крепления и другие виртуозные детали конструкции демонстрируют навыки всех людей, которые построили его, включая саму семью, и их высококвалифицированных друзей. Поскольку заказчик был строителем, он увидел в своём доме возможность проявить смелость и амбициозность в проектировании и строительстве. Исключительные навыки клиента проявляются повсюду вместе с тонким мастерством его ремесла.





















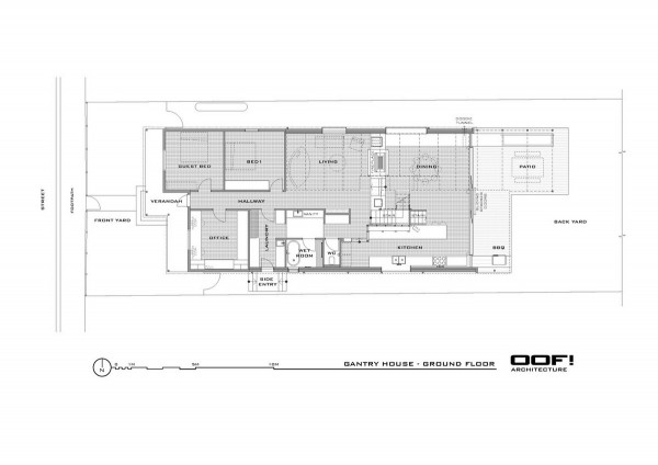
Название: Gantry HouseРасположение: Мельбурн, АвстралияАрхитектура: OOF! architectureСтроительство: 2019Общая площадь: 260 м2Фото: Tatjana PlittБлог "Частная Архитектура"