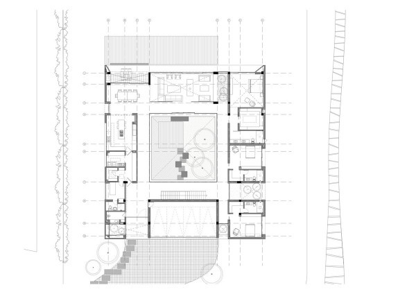
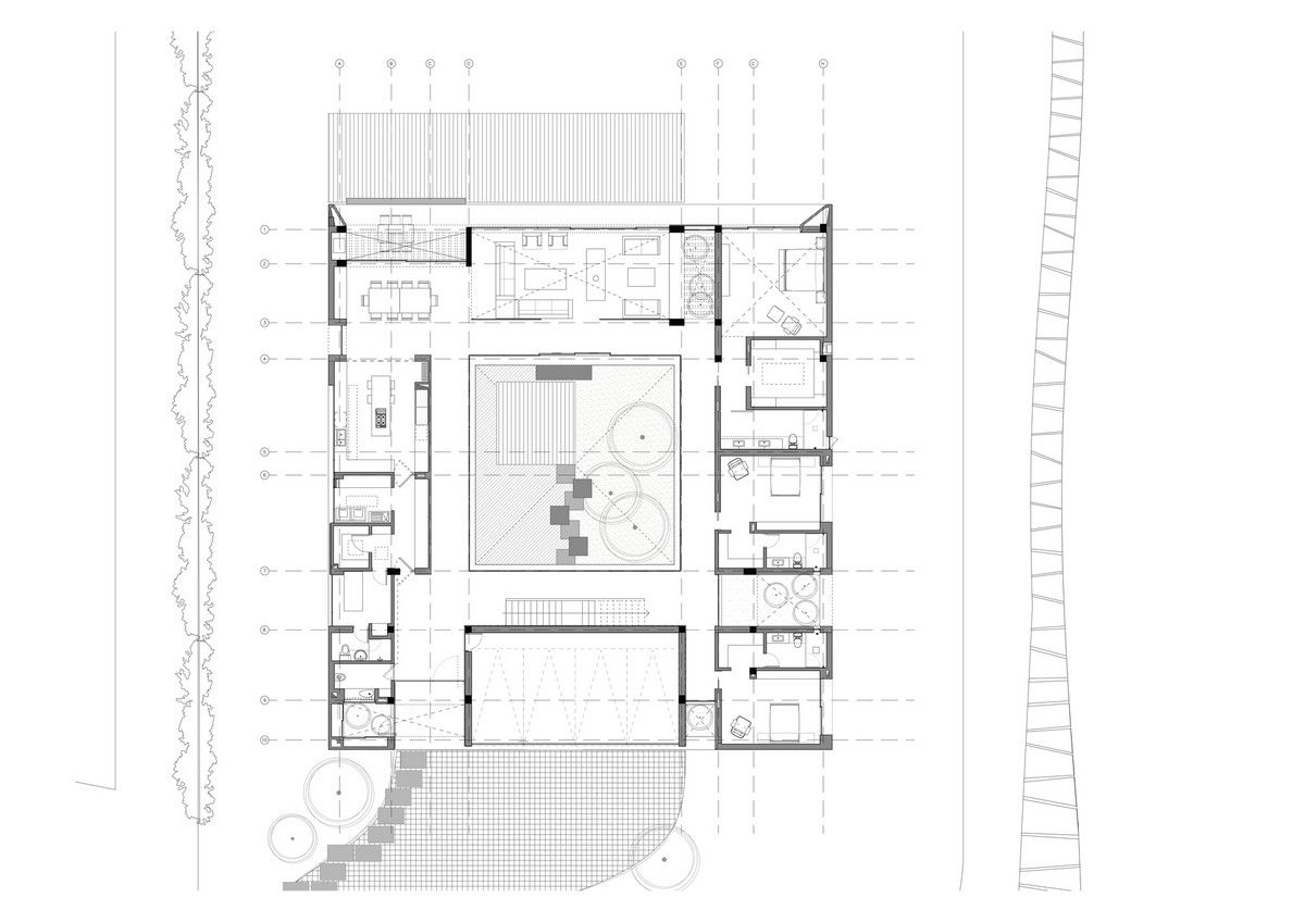
Проект загородного дома 2 House, разработанный архитектурным бюро aRE - Arquitectura en Estudio, выполнен в 2015 году в La Reserva de Potosi, муниципалитет Ла Калера, Колумбия. Частная резиденция построена в живописной зоне между озером и высокой горой, идеально подходящей для уединенного отдыха среди богатого природного ландшафта.

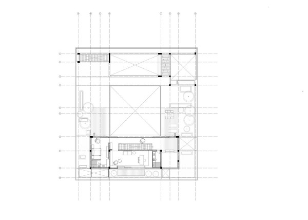
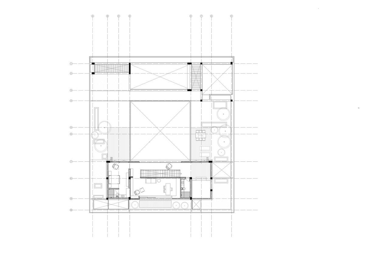
Основная идея проекта заключалась в создании современных открытых пространств, ориентированных на большое озеро и горы. Двухэтажная резиденция площадью 610 квадратных метров имеет форму призмы. Со стороны улицы фасад здания практически закрыт, обеспечивая необходимый уровень конфиденциальности. Фасад, обращенный в сторону озера, имеет панорамное остекление, открывая беспрепятственный вид на озеро и внутренний двор. Чтобы помещения имели достаточное естественное освещение, второй этаж смещен относительно главного фасада. Фасады в проекте выполняют функцию каркаса, внутри которого расположились тесно интегрированные внутренние и внешние пространства.Первый этаж с панорамным остеклением, ориентированный на озеро и двор, занимает социальная зона открытого плана. В двухэтажном блоке здания располагается приватная зона. Блоки соединены роскошным атриумом с прекрасной зоной отдыха на свежем воздухе с искусственным прудом и естественной зеленью. Благодаря его центральному расположению, весь дом наполнен солнечным светом.Проект разработан на основе биоклиматической системы, учитывающей особенности местного климата. Дом имеет двойные стены, потолок и бетонный пол, утепленные пенополистиролом. Открытые пространства в структуре здания обеспечивают комфорт, а правильная ориентация фасадов и панорамное остекление увеличивают естественную освещенность помещений и создают в них благоприятный климат.





















coolhouses.ru