Этот роскошный особняк, расположенный на крутом склоне рядом с густым хвойным лесом, выполнен в характерной для Северной Америки стилистике.

Участок расположен в 45 минутах езды от Камлупса, недалеко от горнолыжного курорта и в окружении трёх гор. У дома сложный план, динамичная форма, каменный цоколь и мощный каркас из местной ели Дугласа. Огромные окна южного фасада захватывают самые лучшие виды на окружающий горно-лесной пейзаж. И в отделке фасадов, и в интерьерах основными материалами стали дерево и камень.В целом получился светлый, тёплый, надёжный и очень северо-американский дом для круглогодичного загородного проживания.






























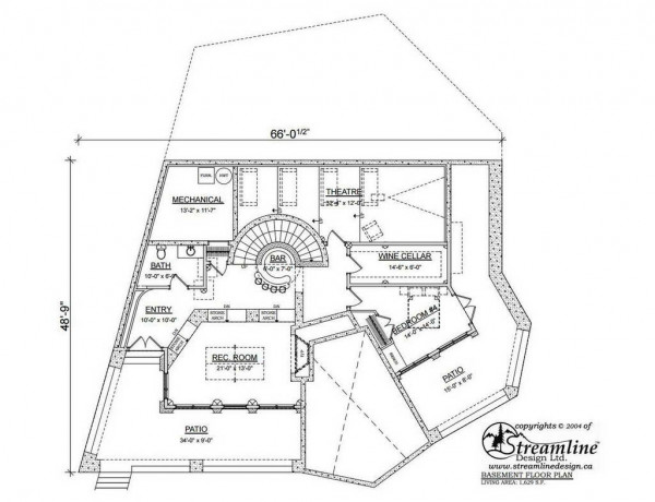
Название: Каркасный деревянный дом Сан Пикс (Sun Peaks Timber Frame)Расположение: Сан Пикс, Камлупс, Британская Колумбия, КанадаАрхитектура: Custom Log Home Designs, Streamline Design LtdОбщая площадь: 387 м2Фото: Custom Log Home DesignsБлог "Частная Архитектура"