Небольшой участок находится на границе леса и поля. Дома расположены между деревьев в лесной части, а фасад главного дома - вдоль красной линии застройки со стороны поля. Идея генплана заключалось в том, чтобы на очень небольшом пространстве участка создать два контрастных двора. Один - лесной, с естественным ландшафтом, второй - сад цветущих и плодовых деревьев.

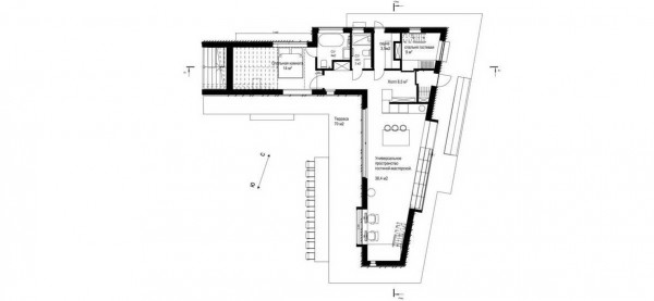
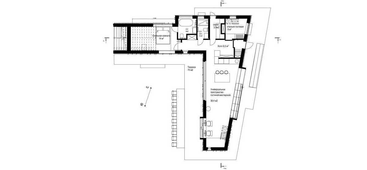
Кровля главного дома - эксплуатируемая, с ведущей на неё лестницей-амфитеатром. Стандартная ровная площадка приобрела ландшафтную доминанту. С кровли главного дома и с лестницы-амфитеатра открывается прекрасный вид на лес и закат. По периметру дома расположена терраса - это одновременно альтернатива садовым дорожкам и ландшафтная мебель: на террасе можно сидеть, лежать и в целом это переходное пространство между интерьером и экстерьером участка. Площадь Г-образного в плане главного дома изначально планировалась не больше 80 квадратных метров, но в процессе проектирования и строительства высота увеличилась до 6 м (включая парапеты), что позволило добавить антресольный этаж, а общая площадь выросла до 92 м2.На первом этаже расположены мастер-спальня (14 м2) со своим санузлом (4 м2), гостевой санузел (3 м2), сауна (3,5 м2), небольшая гостевая спальня с антресольным этажом для кровати (9 м2). Универсальное пространство гостиной объединено с кухней, каминной зоной, библиотекой и зоной для удаленной работы (38,4 м2). Кроме того, в доме будут расположены зона для zoom-конференций на антресоли (12 м2), прихожая (1,6 м2) и холл (8,5 м2). Места для хранения, которые обычно располагаются в подвале, в проекте будут расположены над санузлами на антресолях. Пространство дома за счёт высоких потолков стало трёхмерным и по характеру это архитектурная мастерская, скомпонованная из разновысоких объёмов, открывающихся друг в друга.





































Название: Дача архитектораРасположение: Московская область, РоссияАрхитектура: Рустам КеримовПлощадь участка: 8 сотокОбщая площадь: 92 м2Фото: Илья Столяров (ТВ-проект "Дачный ответ")Блог "Частная Архитектура"