Реконструкция старого дома в Брансуик-Уэст, пригороде Мельбурна, штат Виктория, Австралия, выполнена в 2020 году по проекту архитектурного бюро DOOD Studio. Дом был приобретен в 2017 году молодой семейной парой с маленьким ребенком с целью создания в нем уютного семейного гнезда, в котором будет расти их семья.

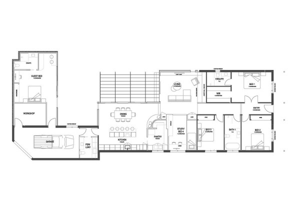
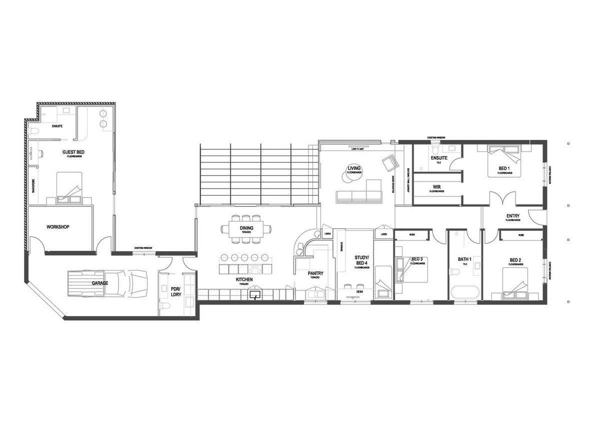
В результате реализации проекта старый дом с темными низкими помещениями, похожий на лабиринт, был отремонтирован и преобразован в современный светлый особняк с пространствами, наполненными свежестью окружающего ландшафта. Приоритетными задачами проекта были определены: достижение высокого уровня естественного освещения во всех помещениях, интеграция пространств с северным садом, а также оборудование изолированного от основного дома гостевого крыла.Поскольку конструкция здания находилась в удовлетворительном состоянии, удалось сохранить большую часть существующей площади, что позволило снизить финансовые затраты. Сэкономить расходы также помогло повторное использование строительных материалов оригинального здания. Так, для кладки стен и брусчатки была использована кирпичная кладка старого дома, а облицовка фасадов выполнена из переработанного пластика. Комфортным и энергоэффективным дом сделала пассивная солнечная ориентация, позволившая уменьшить зависимость от кондиционирования воздуха.На площади 270 квадратных метров были оборудованы все необходимые для комфортной жизни семьи функциональные зоны. Центральное место с панорамным остеклением в сторону сада занимает просторная кухня-столовая. Рядом расположены гостиная и домашний офис. Левое крыло дома занимает гостевая спальня с ванной комнатой. С правой стороны здания находится приватная зона с тремя спальнями и двумя ванными комнатами.Стеклянные раздвижные двери связывают социальное пространство с открытой террасой, защищенной оригинальным "живым" навесом. Вьющиеся растения разрастаются по стальному каркасу и создают естественную зеленую крышу, которая будет защищать помещения, выходящие на север, от яркого солнечного света. Терраса, плавно переходящая на территорию сада, связывает разные функциональные зоны и создает ощущение единой интерьерной композиции, интегрированной с садом.

















coolhouses.ru