Основным требованием заказчика было сделать конструкцию дома "невидимой". В центре внимания должна быть коллекция произведений искусства и открытый ландшафт. Это означало, что авторам нужно было одновременно иметь большие проёмы и большие поверхности стен. Структура должна была отойти на второй план и сыграть роль "холста", на который клиент должен был добавить "характер и цвет" посредством своей коллекции произведений искусства.

Все материалы, использованные в этом дизайне, являются открытыми и "сырыми", что демонстрирует их искренний характер. Около 80% внешней поверхности этой конструкции - стекло. Это было сделано для того, чтобы размыть грань между "внутри" и "на улице". Для достижения этого эффекта потребовались большие бесшовные панели из стекла, что стало возможным благодаря использованию сверхпрочных алюминиевых рам с тонким профилем., в результате чего алюминиевая рама была практически незаметна. Большинство стен остались незащищенными после оштукатуривания и ручной полировки. Потолок оставили открытым, а для пола использовали оксидную отделку. Чтобы объединить все эти материалы/отделки и придать каждому из них необходимый контраст, некоторые поверхности стен были окрашены в белый цвет. Глиняные джаали на входной стене нарушили монотонность, а также сохранили уединение в остальном прозрачном доме. Джаали также следили за тем, чтобы воздушный поток не нарушался.Пространства должны быть чистыми и незагромождёнными, чтобы создавать ощущение открытости. Это, наряду с большими окнами, делает структуру прозрачной и почти незаметной, придавая особое значение "искусству", которое в ней находится, и окружающему ландшафту. Дизайн конструкции позволяет солнцу и окружающей среде пробуждаться, днём и ночью структура вдыхает жизнь в свой контекст.
Справка: Джали или джаали, (Урду: جالی Хинди: जाली jālī, что означает "сеть") - это термин для перфорированного камня или решетчатого экрана, обычно с орнаментальным рисунком, созданным с использованием каллиграфии и геометрии. Эта форма архитектурного декора распространена в архитектуре индуистского храма, индо-исламской архитектуре и в целом в исламской архитектуре.

























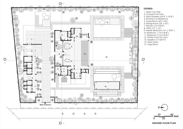
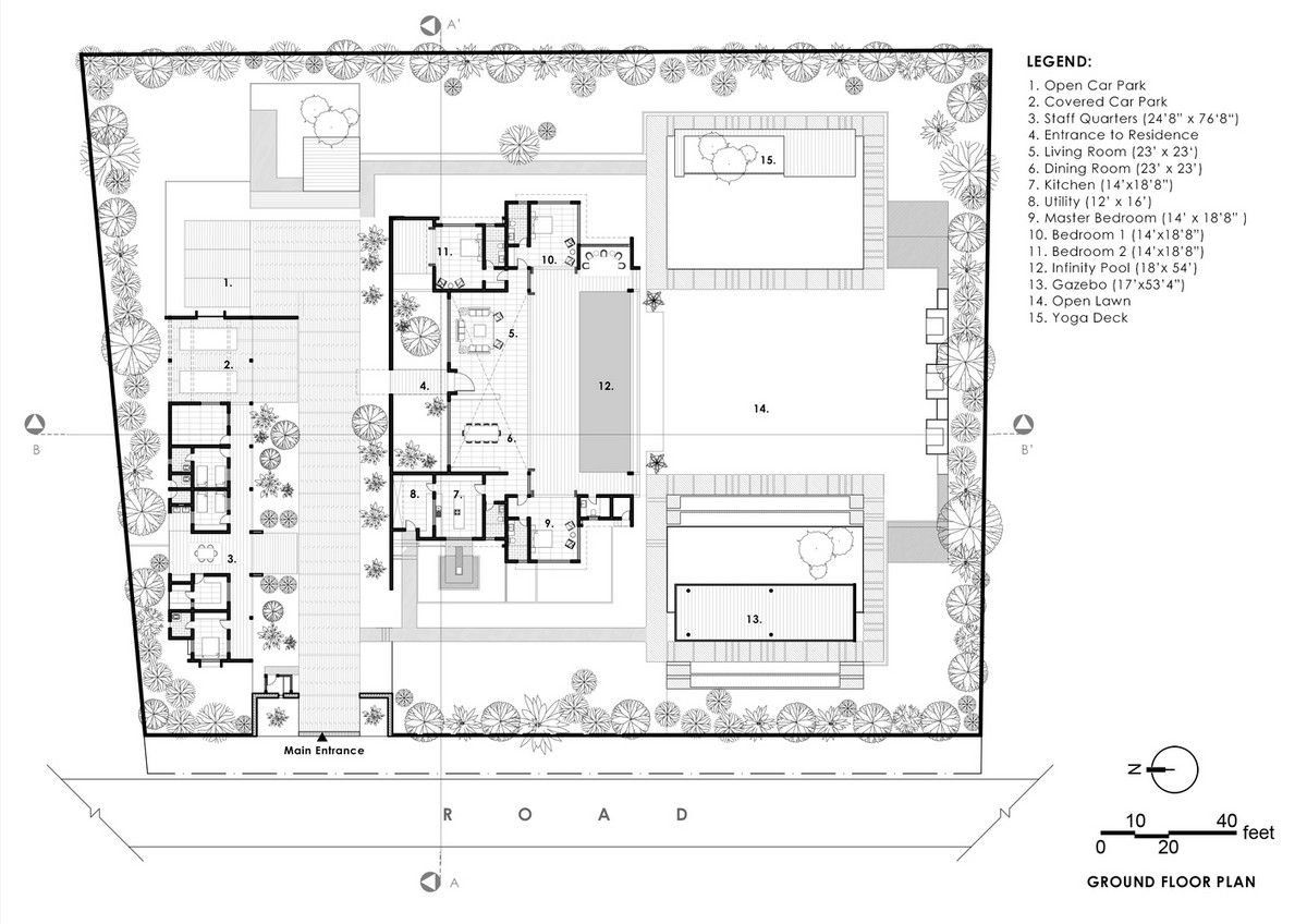
Название: Резиденция Джанаприя (Janapriya Residence)Расположение: Бангалор, ИндияАрхитектура: Keystone ArchitectsСтроительство: 2019Общая площадь: 650 м2Фото: Arjun Krishna PhotographyБлог "Частная Архитектура"