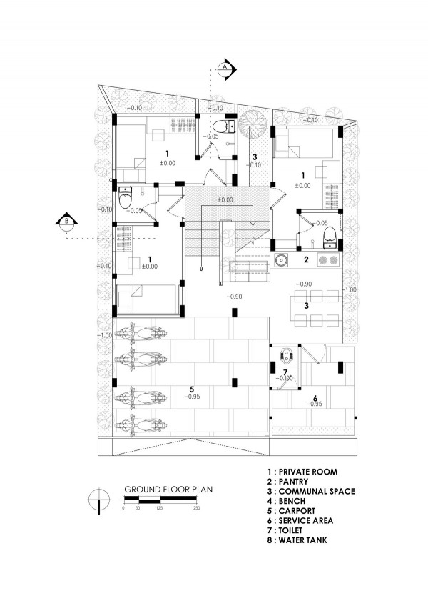
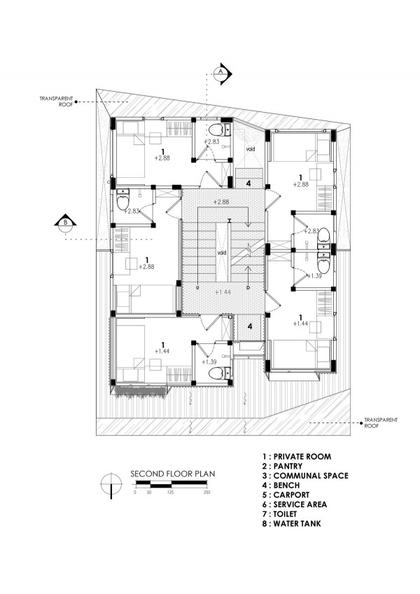
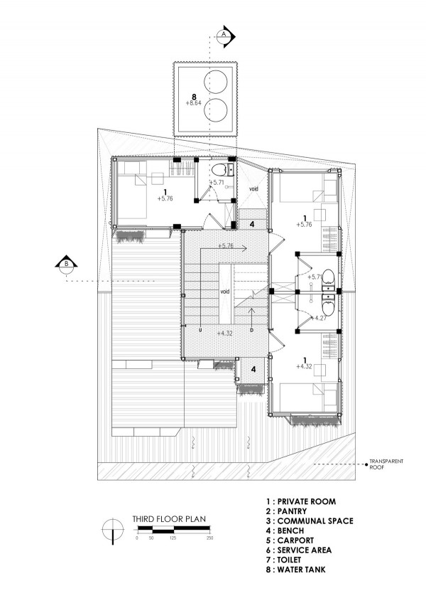
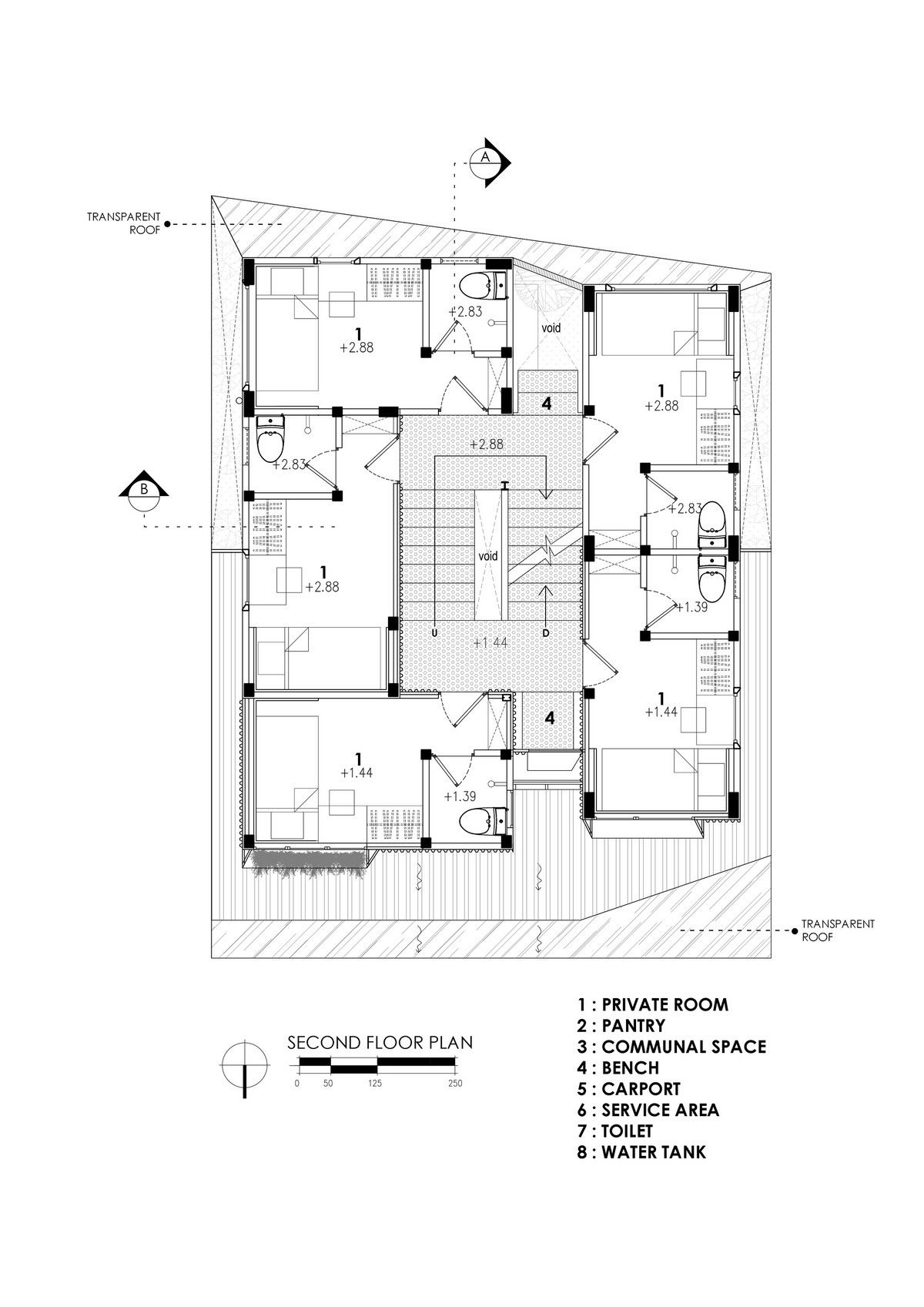
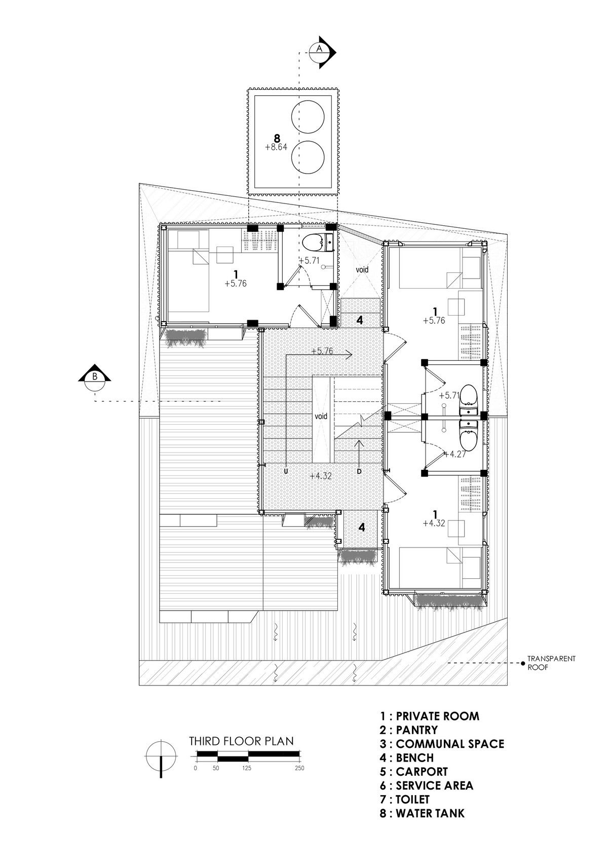
Ismail Solehudin Architecture спроектировал пансионат на 11 номеров (спален) из красного металла и кирпича, где лестница служит коридором и освещённым светом общественным пространством. Решение заключалось в том, чтобы отказаться от общепринятого стиля коридора с одним или двумя входами для многоквартирного дома. Вместо этого они сосредоточились на лестничной клетке как единственном месте горизонтальной и вертикальной циркуляции между функциональными единицами.

"Преимущество системы циркуляции, которую мы использовали, по сравнению с проектами пансионатов или квартир, в которых используется система циркуляции коридора с двойной загрузкой, заключается в том, что это здание имеет меньшую площадь с тем же количеством квартир", - сказал Dezeen основатель студии Исмаил Солехудин. Пансионат имеет 178 квадратных метров застроенной площади, включая комнаты площадью 10 квадратных метров плюс общественное пространство, парковочную зону и зону обслуживания. Чтобы лестница была привлекательной социальной зоной, архитекторы превратили её в скульптурный элемент, используя подвесную стальную конструкцию. Перфорированные металлические ступени и световые люки позволяют свету проникать в пространство.Дополнительным архитектурным элементом является фасад красного цвета, который студия выбрала из-за его яркости. Чтобы отразить функцию пансионата, команда также хотела, чтобы внешняя часть здания создавала впечатление "кумулятивного многоэтажного дома" - изображение, которое усиливается за счёт фрагментированной покатой крыши. Дополнительным преимуществом конструкции крыши является то, что она соответствует тропическому климату и потенциально создает большую циркуляцию воздуха внутри здания. Чтобы ещё больше облегчить движение воздуха, здание сдвинуто со всех сторон, создавая пустоту между соседними конструкциями. Оно имеет бетонную и стальную конструкцию с открытой кирпичной кладкой, создающей текстурный контраст на фоне красных металлических стен. Фасад и крыша изготовлены из стали с цинковым покрытием, выбранным из-за его лёгкости. Открытые материалы также сводят к минимуму необходимость в уходе, поскольку их можно оставить естественным образом стареть без перекраски.




































Название: Stack By Step Red Zone Boarding HouseРасположение: Богор, Западная Ява, ИндонезияАрхитектура: Ismail Solehudin ArchitectureОбщая площадь: 178 м2Фото: Mario Wibowo Photography и Andhi PrayitnoБлог "Частная Архитектура"