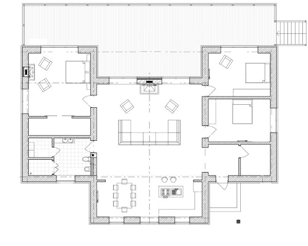
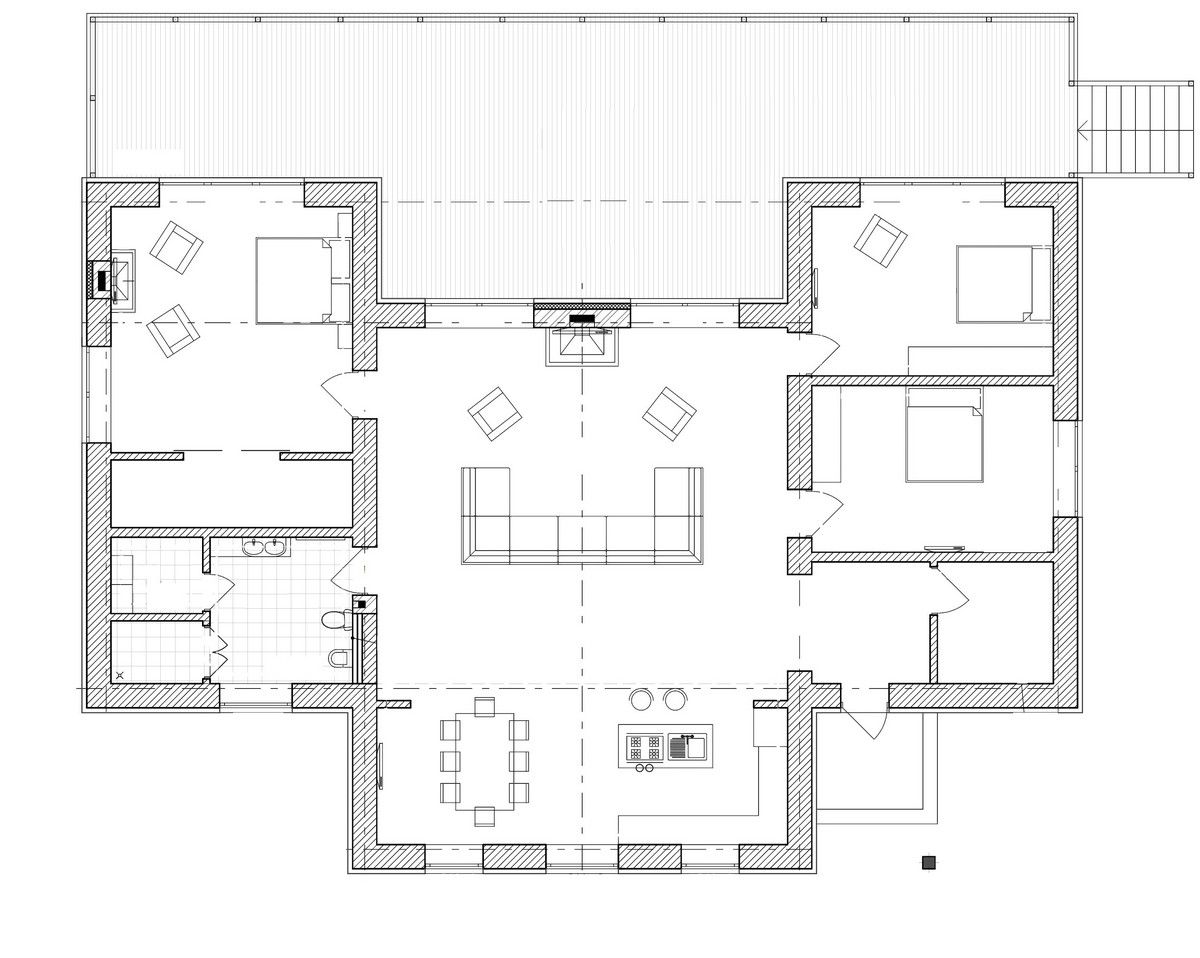
Важным при создании концепции дома была максимальная привязка к существующему рельефу, подчеркивающая ориентацию всего жилого комплекса на пойму реки Волги.

В самой высокой части участка авторы разместили дом с витражным фасадом и террасой, ориентированными на пойму реки. Рядом с домом, при въезде на участок, находится хозяйственный блок с навесом для машин. Гостевые дома расположены в нижней части участка, а еще ниже - баня у воды с двухярусными террасами и причалом для яхт.В состав комплекса вошли:
Индивидуальный Жилой Дом с Навесом для авто,
Два Гостевых дома и Баня на воде.
Проект выполнен в стилистике альпийского шале, дополненной элементами архитектурного кантри. Подобная стилистика помогает дому вписаться в сложившийся рельеф с естественным водоёмом. Схожие формы и единая по цветовому решению отделка фасадных плоскостей превращают строения в целостный жилой комплекс.








Название: Частный жилой комплекс "Бармино"Расположение: Нижний Новгород, РоссияАрхитектура: Ирина Михейкина, Александра Глухова, "Ваш Проект"Фото: Юрий ШелудькоБлог "Частная Архитектура"