Резиденция Lilla Rågholmen House, построенная в 2017 году на частном острове Стокгольмского архипелага в Швеции, разработана архитектурной студией Arrhov Frick Arkitektkontor. Дизайн современного стильного здания продиктован особенностями рельефа крутого прибрежного склона, а его программа учитывает движение солнца, получение самых выгодных пейзажных видов и соблюдение необходимого уровня конфиденциальности. Благодаря удачному контексту места, дом имеет роскошные виды во всех направлениях, что делает пребывание в нем особенно привлекательным и комфортным.

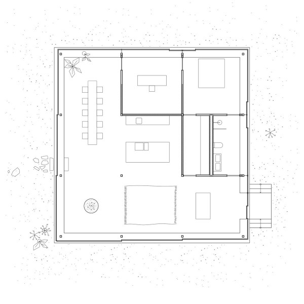
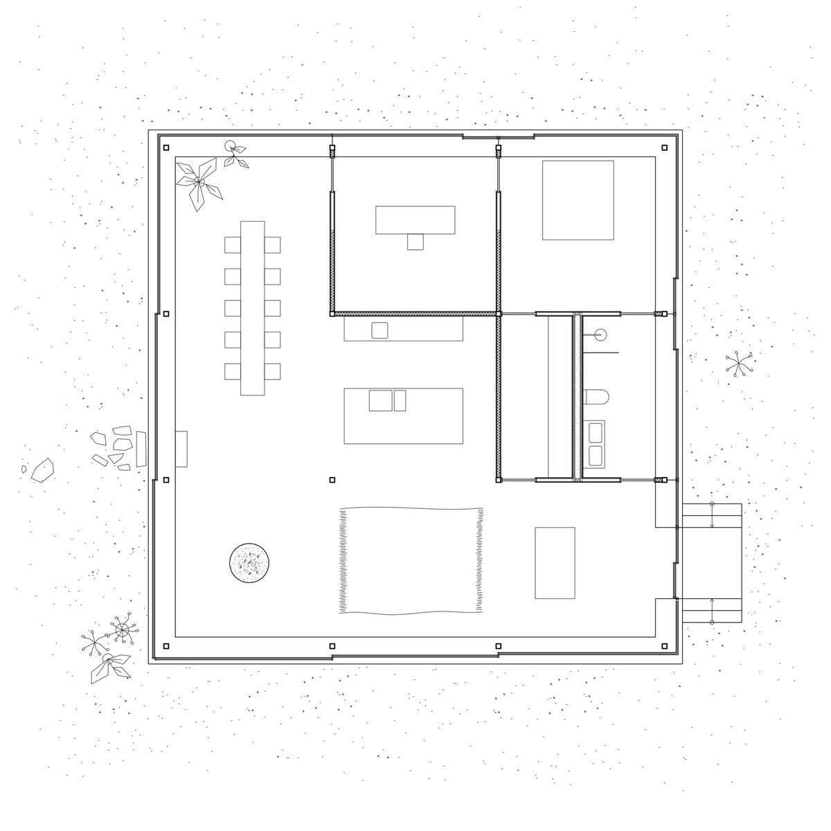
Резиденция имеет элегантный вид и впечатляет своей легкостью и изяществом. Здание опирается на тяжелый бетонный цоколь, отлитый прямо на обнаженной скале участка. Бетонное основание образует периметр дома, создавая ощущение его особенной защищенности. Вокруг бетонного фундамента находится пороговая планка, которая опускается только при входе в дом. Подоконник используется как скамейка для сидения, места для хранения и ступеньки на улицу. От цоколя в виде решетки выступают 16 стальных столбов, поддерживающих низко нависающую деревянную крышу с широкими свесами. Фасады резиденции представлены стеклянными окнами шириной 4,2 метра, которые полностью занимают все внешние стены, благодаря чему дом напоминает стеклянный павильон. Большая площадь остекления размывает границу между интерьером и экстерьером.В интерьере использована открытая планировка. Бетонный пол смягчается теплым деревянным потолком. Подвесной черный камин, установленный в социальной зоне, создает уютное пространство для отдыха.











coolhouses.ru