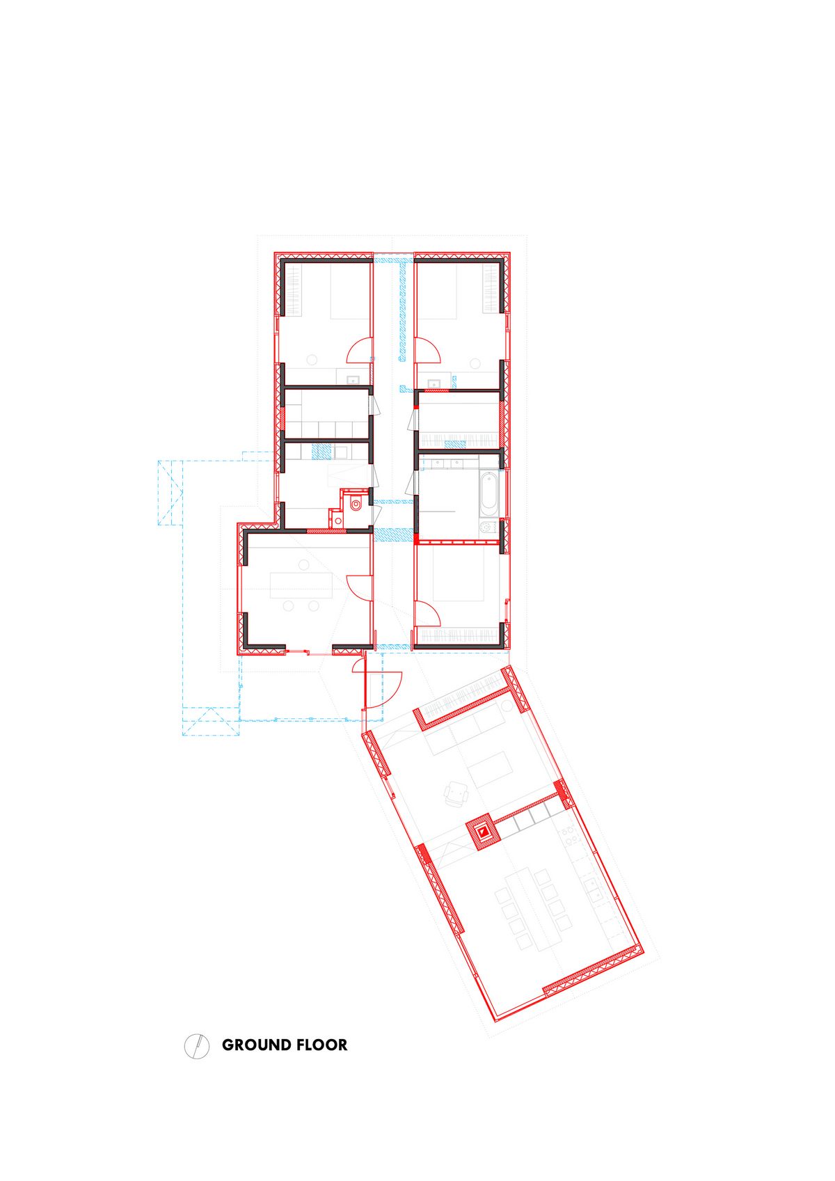
Шале 60-х годов прошлого века было отремонтировано и расширено, получив новое крыло и слегка обновлённую стилистику. Архитекторы хотели избежать столкновения между старым и новым, и поэтому родилась основная идея для гармоничного расширения существующей структуры. Естественное разделение между первоначальным домом и новой пристройкой было интерпретировано как два крыла - "дневное крыло" на юге, содержащее гостиную, кухню и столовую, и "ночное крыло" на севере, содержащее спальни и ванные комнаты.

"Существующая часть превратилась в более интровертную зону, а расширение - в просторное светлое дневное крыло", - рассказали в студии. Новое крыло расположено под небольшим углом к старому, чтобы максимально увеличить угол падения солнечного света в интерьер, и в результате треугольная область между двумя крыльями образует вестибюль. Почти вся существующая часть сохранилась нетронутой, с её меньшими проёмами и более низкой высотой потолка, которые использовались для создания интимной атмосферы в ночном крыле. Наиболее драматическим изменением является новый коридор, который делит первоначальную конструкцию пополам и обрамляет виды в новое крыло. Это достаточно широкое пространство, которое можно использовать как неформальную социальную или игровую зону.Следуя пологому склону ландшафта, новое крыло переходит в утопленное бетонное основание, внешне выраженное в виде бетонного цоколя, который повторяет основу из белого кирпича первоначального шале. Это основание создаёт невысокую опору вокруг интерьера, дублируя длинные скамейки и подоконники и визуально расширяясь до центрального камина в светлом дневном крыле. Большие окна с деревянными рамами открывают вид на окружающую сельскую местность, а застеклённая часть огибает южный угол, где раздвижная дверь выходит на небольшую площадь настила. В отличие от низких потолков старого здания, двускатная крыша в новой части выражена изнутри и отделана белой штукатуркой, что еще больше подчеркивает ощущение пространства.




























Название: Шале в Дестелбергене (Chalet in Destelbergen)Расположение: Дестелберген, БельгияАрхитектура: Graux & Baeyens ArchitectenСтроительство: 2019Фото: Jeroen VerrechtБлог "Частная Архитектура"