Задача инвестора заключалась в создании на участке меньшего по размеру здания - студии в непосредственной близости от существующего дома. Обдумывая концепцию новостройки, на архитекторов повлиял красивый участок со спелыми соснами, который формирует лесной характер всего участка.

Сам инвестор с самого начала делал упор на максимальную сохранность существующих деревьев. С уважением к природе проектировщики ненасильственно разместили студию на сюжете, причём настолько идеально, что намеренно позволили одной из зрелых сосен "вырасти" через террасу. С самого начала архитекторы очень чутко подошли к дизайну студии, уделяя особое внимание дизайну и отдельным деталям. Это соответствует решению массы здания, деревянных фасадов, окон с безрамным остеклением, а также реализации всего интерьера на заказ.Большинство элементов интерьера выполнено из того же материала, из которого построена несущая конструкция дома - панелей из массива ели. Таким образом, несущие стены красиво сочетаются со встроенными элементами мебели и составляют единое целое. Вся мебель, а также стены в интерьере покрыты краской, а также в мягких тонах выбрано оборудование с одиночной мебелью и аксессуарами.

















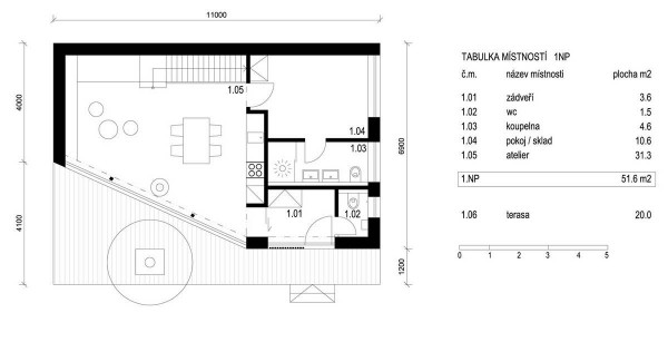
Название: Студия Клановице (Studio Klanovice)Расположение: Клановице, ЧехияАрхитектура: ProdesiСтроительство: 2015Общая площадь: 103 м2, в том числе терраса 25 м2Фото: ProdesiБлог "Частная Архитектура"