Пристройка новой крыши в трехэтажном доме конца 19 века на Вассерштрассе, 19 в городе Базель, северо-запад Швейцарии, выполнена в 2021 году по проекту архитектурной компании Atelier Atlas Architektur. Многоквартирный дом располагается в старейшем рейнском порту "Санкт-Иоганн" недалеко от моста Драйрозенбрюке. Заказчиком проекта является молодая семья, которая приобрела недвижимость еще в 2014 году.

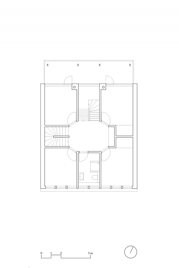
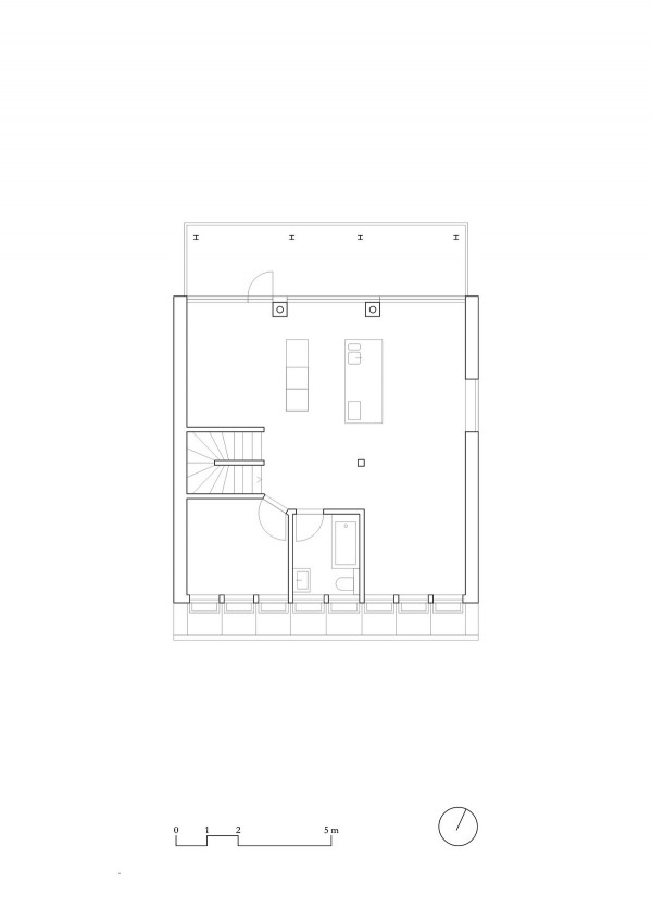
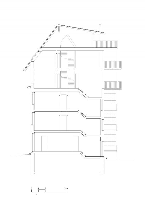
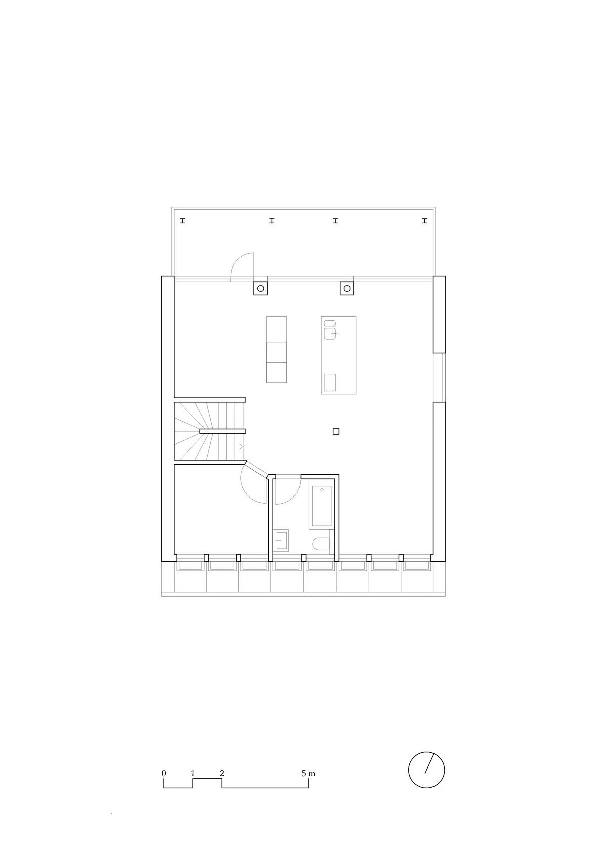
Архитекторами была использована радикальная концепция надстройки этажей к существующему зданию, способствующая реализации идеи внутреннего уплотнения города и рассматривая как экологический вариант застройки. В процессе работы авторами проекта были максимально сохранены ценные строительные ресурсы старого дома и доступная жилая площадь, а новая семейная квартира со стороны Вассерштрассе выглядит как пристройка к крыше. Благодаря тому, что существующие архитектурные элементы, в том числе карнизы на фасадах, были сохранены и отреставрированы, новая часть дома идеально дополнила существующее здание и вписалась в архитектурный ансамбль соседних строений.Пристройка с дизайнерским деревянным фасадом и крутой двухэтажной скатной крышей с тремя новыми уровнями балконов открыта в сторону реки. Боковые противопожарные стены, имеющие деревянную конструкцию покрыты специальной известково-цементной структурной штукатуркой, а существующие внешние стены окрашены. В сторону Вассерштрассе пристройка имеет более закрытый вид. Высокая скатная крыша простирается на два этажа, а мансардный этаж с восемью вертикальными окнами действует как промежуточное звено между крышей и старым домом. Металлическая фальцевая кровля четко отделена от соседних черепичных крыш и отсылает к расположенному рядом промышленному контексту теплоцентрали. Проемы в крыше имеют конструкционный характер. Так, восемь световых люков в крыше воспроизводят положение стропил, а непрозрачный световой люк выборочно открывает кровельное пространство.Типология пристройки складывается из планировки помещений здания. Существующая в подъезде лестница ведет в расположенный по центру этажа центральный восьмиугольный холл, который является входной зоной в новый мезонет. Отсюда можно попасть во все помещения точечно-симметричного плана этажа. Вокруг холла в каждом из четырех углов расположены спальни, между которыми находятся лестница, ванная комната и гардероб. Независимая от подъезда полувинтовая лестница ведет к западной противопожарной стене и соединяет все уровни новой квартиры. На втором этаже оборудована социальная зона открытой планировки, которая объединяет гостиную, столовую и кухню. Третий уровень представляет собой необогреваемое пространство под крышей, которое функционирует как открытое дополнительное помещение и климатический буфер в духе кровельных ферм периода Gründerzeit.В проекте были использованы долговечные природные материалы, многие из которых имеют повторное использование, доминирующим при этом, является натуральное дерево. Стены и потолок квартиры облицованы трехслойными еловыми панелями теплого красновато-серого оттенка, которые эффектно контрастируют с полом, выполненным из отшлифованного ангидрита.Часть внутренних деревянных дверей была сохранена и отреставрирована, часть заменена на новые из-за повышенных требований к противопожарной защите здания. Изделия были выкрашены масляной краской в серый цвет. Изюминой новой квартиры является круглое окно в восточной пожарной стене, которое очень нравится детям.Для обеспечения сейсмостойкости здания все нагрузки передаются через балки и стеновые плиты на два брандмауэра. В подвале нагрузку пристройки принимают на себя дополнительно армированные линейные фундаменты.
















coolhouses.ru