Дом задумывался как домик выходного дня, который со временем станет постоянным местом проживания двух человек. Он расположен на окраине небольшой деревни на пологом участке. Основная ось проходит вдоль северной границы, у въезда два крытых парковочных места и два других на проезжей части, а рядом находится небольшое складское здание с тепловым насосом "воздух-вода" для отопления.

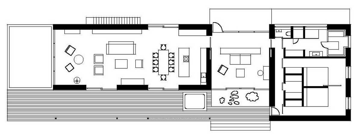
Главной темой дизайна стала связь с природой, которая окружала здание. Это одноэтажное здание без подвала. Здесь есть главная многофункциональная комната с кухней, столовой и гостиной, камином и прямым выходом на крытую террасу с джакузи и бассейном. Посередине находится прихожая, пространственно связанная с семейной комнатой. С другой стороны находится ванная комната с сауной и паровой кабиной, две спальни и кладовая.Конструкция выполнена из сухой кладки "TESUZ", внутренние стены оставлены без штукатурки, внешняя поверхность утеплена минеральной ватой и облицована сайдингом из красного кедра. Конструкция крыши сделана из деревянных балок, изнутри снова из того же материала, что и фасадная обшивка - красный кедр. Наверху есть сад на крыше, соединенный стальным каркасом. Раздвижные окна изготовлены по индивидуальному заказу из красного кедра, фиксирующая часть имеет безрамную конструкцию. На полу - паркет из белого промасленного дуба. Центральная входная часть бетонная. Система отопления представляет собой комбинацию тёплого пола и радиаторов.





























Название: Дом выходного дня в Буше (Weekend house in Bus)Расположение: Буш, ЧехияАрхитектура: Marketa CajthamlovaСтроительство: 2011Площадь участка: 8 сотокФото: Ester HavlovaБлог "Частная Архитектура"