Современный семейный дом House ER, построенный в 2021 году в сельской местности Венето, коммуна Бреганце, Венеция, Италия, спроектирован дизайнерской фирмой Didonè Comacchio Architects. Вдохновением для проекта стали традиционные для этого региона двухэтажные дома с двускатной крышей.

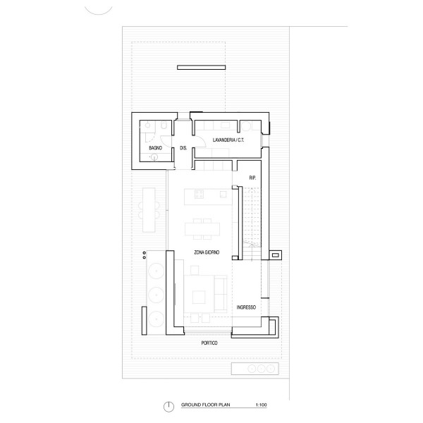
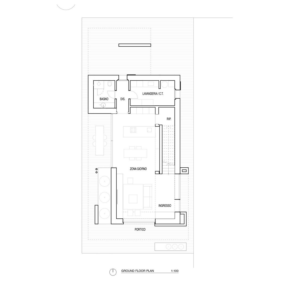
House ER представляет собой простой прямоугольный объем со светло-серыми фасадами, к которым по периметру прикреплены консольные бетонные плиты, образующие защищенную входную зону. Плиты имеют приятную поверхность, образованную ориентированно-стружечными панелями OSB, которые были установлены в опалубке во время заливки бетона. Такие же панели OSB используются для оформления кухонной стены и парапета лестницы. Двускатная крыша выделена темно-серым цветом.Общая площадь двухэтажного дома составляет 180 квадратных метров. Вход в дом находится с восточной стороны. На первом этаже располагается социальная зона открытого плана - гостиная, столовая и кухня, а также хозяйственные помещения, в том числе кладовая, занимающая место под лестницей, санузел и котельная. Раздвижные стеклянные двери связывают общественное пространство с террасой и зеленым садом. Пол представляет собой покрытие серым микротерраццо, который гармонирует с цветовой палитрой дома. На втором этаже расположена приватная зона - главная спальня с собственной ванной комнатой и еще две спальни с двуспальными кроватями и ванной комнатой. Этажи связывает стильная деревянная лестница, которая освещена большим потолочным окном. Расположение окон в доме ориентировано на получение самых выгодных видов на сельский ландшафт.В интерьере доминируют оттенки светло-серого цвета. Благодаря использованию во внутреннем и внешнем оформлении идентичной цветовой палитры и одинаковых или схожих материалов, интерьер и экстерьер воспринимаются как цельная архитектурная композиция.


















coolhouses.ru