Проект La Frangine Residence разработан архитектурной фирмой Bourgeois / Lechasseur architectes и реализован в 2019 году в муниципалитете Стоунхэм-и-Тьюксбери, провинция Квебек, Канада. Проект представляет собой расширение и преобразование старого шале в семейную резиденцию для активного отдыха на горнолыжном курорте. Расположенный рядом со склонами курорта Стоунхэм, дом предоставляет возможность для занятий горными видами спорта, любителями которых являются члены семьи домовладельца - художники, предприниматели и студенты.

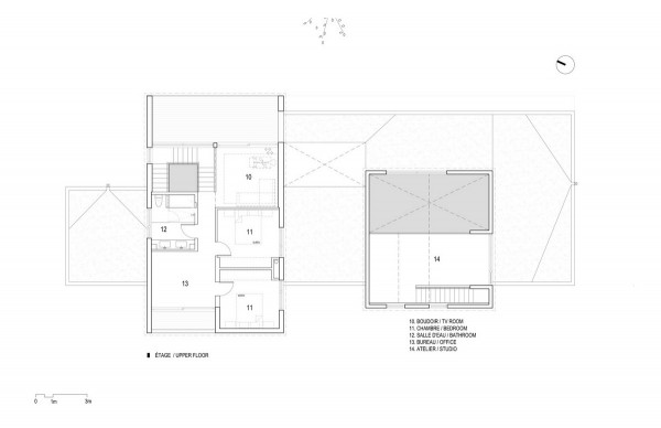
Вдохновением для проекта послужила оригинальная форма старого шале. Внимание к архитектурному наследию, тщательный выбор материалов и современное программное наполнение позволили создать горную резиденцию, уважающую прошлое и соответствующую современным реалиям. В процессе реализации проекта к существующему шале было добавлено второе независимое здание, дизайн фасадов которого повторяет форму и пропорции оригинального шале, но отходит глубже в лиственный лес. Такое расположение позволило создать интимную террасу, расположенную в задней части дома. Объемы соединены между собой одноэтажным стеклянным переходом с плоской крышей, которая вытянута в сторону заднего фасада и частично закрывает большой внутренний дворик. Стеклянный коридор обеспечивает помещения естественным светом, проникающим вглубь здания. Посаженное в центре двора дерево символизирует начало второй жизни для бывшего лыжного шале и рождение нового дома.Переоборудованное оригинальное шале служит основным домом. Его первый этаж занимают столовая и кухня открытого плана. На антресольном этаже под крышей располагается мастерская художника. Благодаря двум большим окнам и стеклянному ограждению, антресольный уровень наполнен естественным светом и кажется парящим над пространством кухни.Двухэтажная пристройка воспроизводит скаты крыши существующего здания, но с двумя полными этажами. На первом этаже дома располагаются главная спальня и гараж, на верхнем этаже, с одной стороны, находятся комнаты для девочек и офисное помещение с видом на гору, с другой, - будуар и крытая терраса на уровне верхушек деревьев. Потолок, облицованный восточным белым кедром, усиливает ощущение простора и природной свежести интерьеров.Два объема соединяет стеклянный переход, который одновременно является и коридором, и гостиной. Его линейный дизайн продолжается через все здание. С одной стороны резиденции он более просторный и служит главным крыльцом, с другой стороны он действует как вторичная веранда, обеспечивая доступ к кухне, цокольному этажу с техническими помещениями и террасе. Оказавшись между двумя объемами, коридор превращается в небольшую уютную гостиную с черным дровяным камином и прямым выходом во двор.














coolhouses.ru