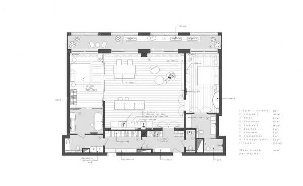
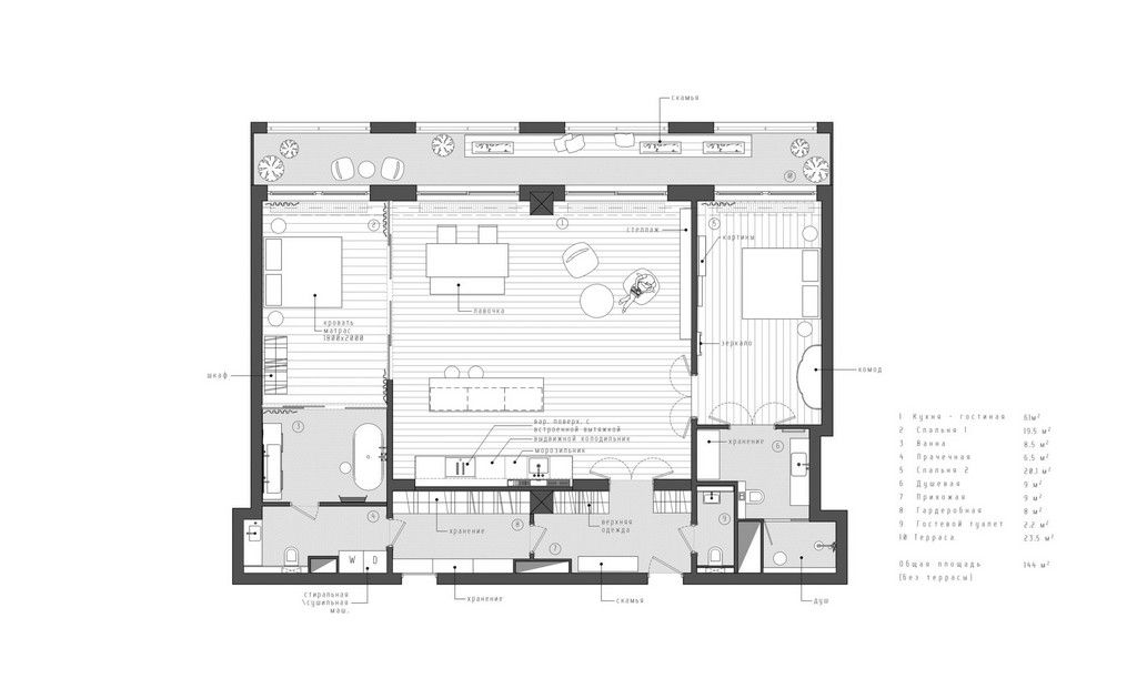
Проект Interior MFN, разработанный INT2architecture, реализован в 2021 году в городе Санкт-Петербург, Россия. Проект включает в себя реконструкцию квартиры площадью 144 квадратных метров в отреставрированном доходном доме в историческом центре города, недалеко от Исаакиевского собора.

Перед архитекторами стояла задача создать современные комфортные апартаменты, наполненные естественным светом и ощущением простора. Отправной точкой планировки стали четыре больших окна во всю высоту помещения, расположенные по прямой. Пространства вдоль окон заняли социальная и приватная зоны. Так, в центральной части квартиры с двумя окнами была оборудована социальная зона открытой планировки - гостиная, столовая и кухня. Помещения с одним окном по обе стороны от нее заняли две спальни - главная и гостевая. Две ванные комнаты и гардеробная расположились вдоль глухой задней стены.Тщательно спланированное пространство квартиры создает ощущение единого целого. Все функциональные зоны связаны между собой, в то же время, при необходимости, предусмотрены варианты обеспечения необходимого уровня конфиденциальности. Так, главная спальня отделена от социальной зоны стеклянной перегородкой, которая, с одной стороны, помогает создать ощущение единого открытого пространства, а с другой, при помощи белых легких занавесок может легко обеспечить приватность.Монохромный интерьер построен на соединении минималисткой эстетики с классическими и модернистскими элементами. В оформлении квартиры органично сочетаются простые лаконичные формы минимализма, изящные роскошные предметы классики и сферические обтекаемые формы модернизма. Изюминкой проекта являются ненавязчивые медные акценты, которые сопровождают весь интерьер и объединяют элементы используемых стилей в единую живую композицию.Минималистичная гостиная представлена уютными небольшими креслами серого цвета и круглым журнальным столиком, выполненным из темного металла. Стену между гостиной и спальней занимает стеллаж из черного металла. Стильно оформлена зона кухни. Рабочая стена с дизайнерскими шкафами черного цвета и задней панелью из серого фактурного камня контрастирует с белым кухонным островом со встроенной бытовой техникой, который одновременно является и барным столиком. Высокие барные стулья поддерживают цветовую палитру кухни - столовой. Медная раковина, медные смесители, ряд медных крючков на сером камне рабочего фартука обогащают дизайн пространства, формируя атмосферу презентабельности. Зона столовой, выполненная в черном цвете, стилизована под уютное домашнее кафе. Обеденный стол с двумя стульями и длинной лавкой располагают к приятному времяпровождению. Эффектным украшением минималистичного общественного пространства являются белоснежные классические двери с медной фурнитурой, которая придает им особенную импозантность.Украшением главной спальни является старинный французский платяной шкаф из красного дерева с зеркальными дверцами, который эффектно контрастирует с современной кроватью. Особенный колорит привносит в интерьер оригинально оформленный прикроватный светильник. Спальня связана с ванной комнатой стеклянными раздвижными дверями. Белые занавески, при необходимости, обеспечивают ее приватность. Аскетичную ванную комнату превращает в изысканное пространство роскошная медная ванна классической формы, которая создает вместе с изящной металлической лестницей для полотенец и каркасной тумбой под раковину потрясающий интерьерный ансамбль. Стены и пол в ванной комнате облицованы терраццо светлых тонов, а зону возле раковины освещает люстра сферической формы.В гостевой спальне в качестве классического элемента выбран антикварный комод из красного дерева, который прекрасно смотрится в сочетании с простой кроватью и скромным прикроватным столиком из черного металла. Кроватную зону освещает стильная сферическая люстра. Используемые в интерьере картины создают настроение и формируют его эстетическую завершенность.


























coolhouses.ru