Проект "Дом в тропических лесах" (Rainforest House) разработан Arena Arquitetura и реализован в 2016 году в городе Манаус, штат Амазонас, северо-запад Бразилии. Город расположен на берегу реки Риу-Негру в окружении тропических лесов, поэтому в нем всегда много туристов, любителей путешествовать по амазонским джунглям.

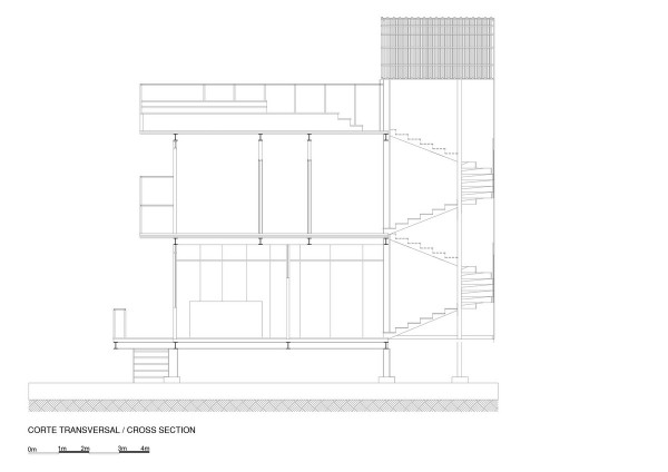
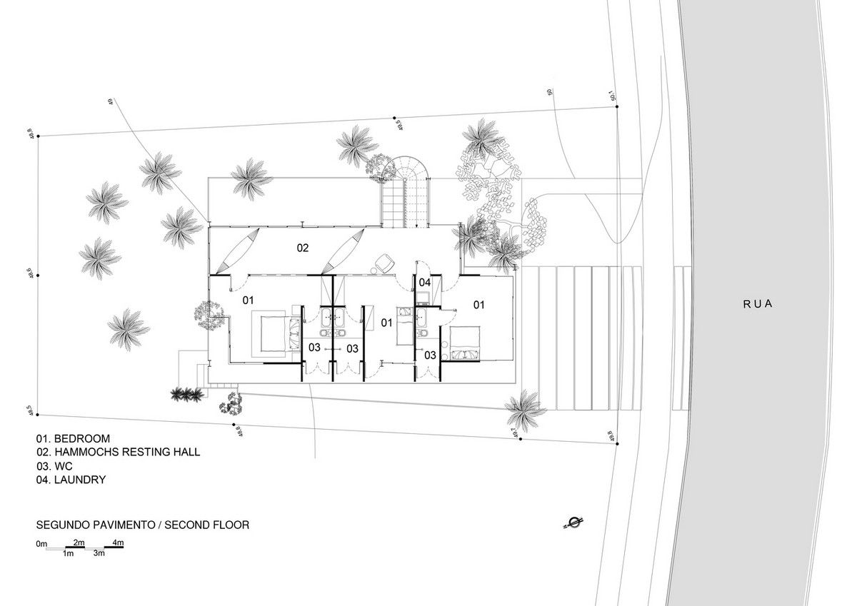
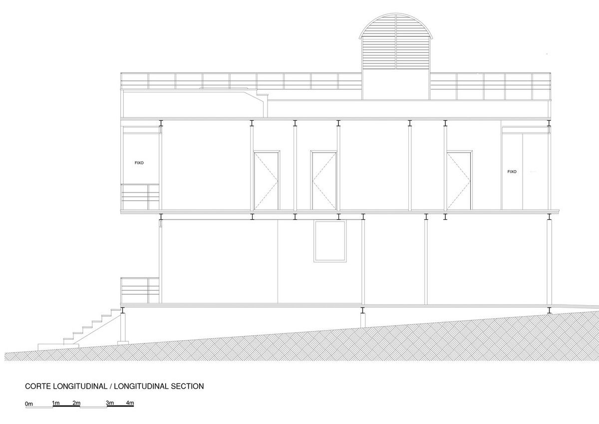
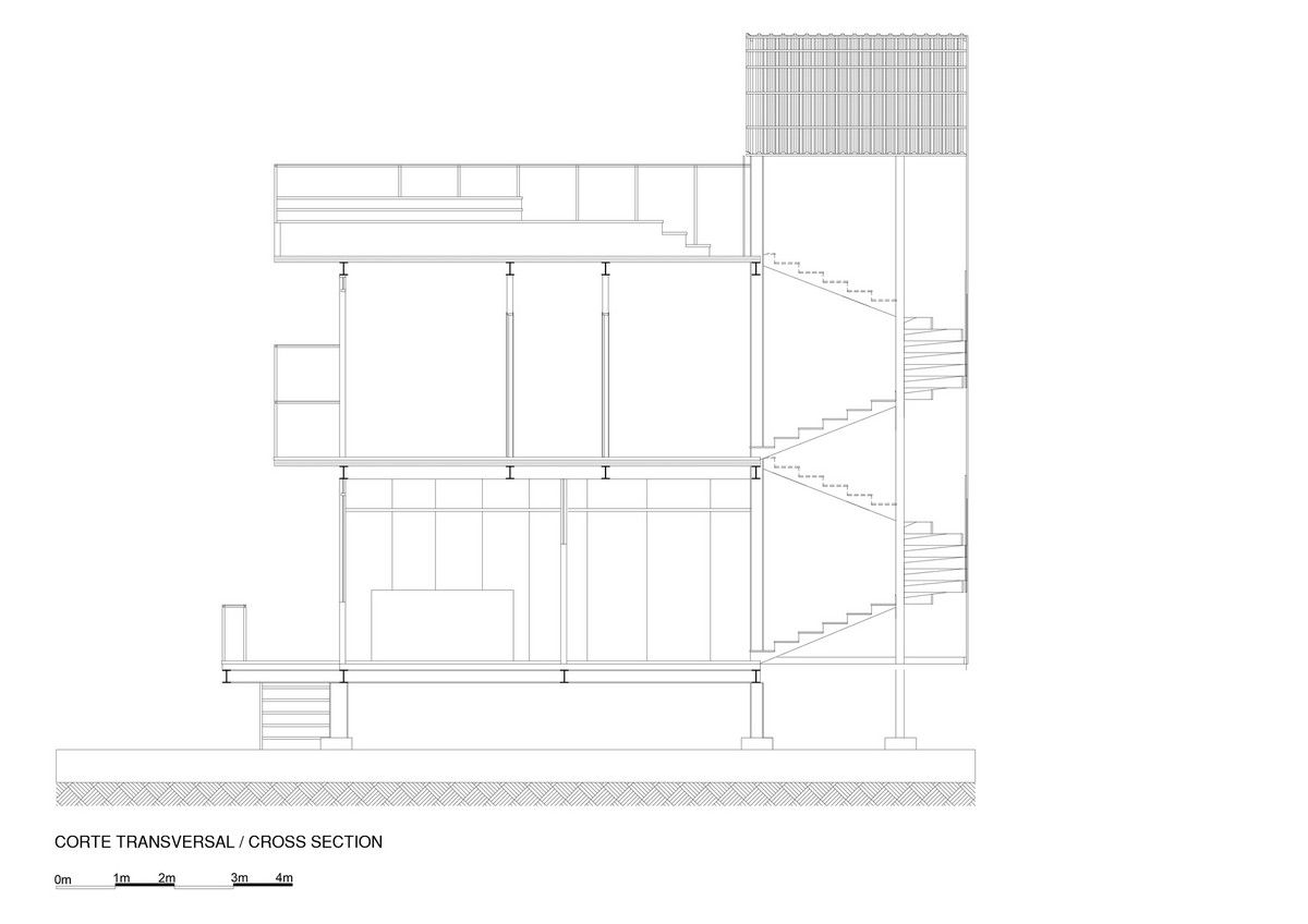
Дом расположен в жилом кондоминиуме в живописном районе Тарума с естественным лесом, ручьями и множеством диких животных. Участок, выделенный под проект, находится на территории сохранившегося посреди городской зоны пышного леса Амазонки, в 25 км от Международного аэропорта имени Эдуарду Гомеша.Основная задача при проектировании и строительстве дома заключалась в максимальном сохранении уникального природного ландшафта и применении естественных процессов вентиляции и освещения здания. С целью отказа от использования тяжелых землеройных машин и сохранения на участке вековых деревьев, выбор был сделан в пользу сборной металлической конструкции объекта, позволяющей соблюсти природоохранные мероприятия.Здание занимает центр участка, где была большая лесная поляна, и выходит на улицу с юго-западной стороны, в то время, как ветер, преимущественно, дует с востока на запад. Конструкция приподнята на сваях на высоте одного метра над естественной местностью, что позволило сохранить корни растущих вокруг деревьев. Пышная зелень тропического леса, плотно окружающая дом, выполняет роль внешних занавесок и обеспечивает необходимую конфиденциальность. Интерьер, оказавшийся "в куполе" буйной зелени, приобретает уникальную характеристику, наполненную природной энергией.Общая площадь двухэтажного дома на одну семью составляет 260 квадратных метров. Первый этаж здания занимает социальная зона открытого плана - гостиная, столовая и кухня. На втором этаже оборудована приватная зона с тремя спальнями и тремя ванными комнатами. На крыше дома оборудована открытая терраса с деревянной палубой и джакузи. Этажи дома соединены панорамной полувинтовой лестницей, которая поднимается вдоль могучих стволов величественных деревьев до террасы, окруженной их пышными кронами. Центральная ось винтовой части лестницы выполнена из 2 металлических труб диаметром 16 см, которые были приобретены на складе по переработке металла в промышленном районе города. Для покрытия лестничной башни была использована часть старого стального желоба диаметром 2,60 метров.Интерьер дома впечатляет естественной простотой и уютом. Часть мебели является эксклюзивной. Для изготовления столешницы для окрашенной стальной конструкции и умывальника была применена древесина уникального дерева ангелим, одного из самых больших деревьев в тропическом лесу, высота которого может достигать50-60 метров, а ствол - 1-1,8 метров в диаметре.







































coolhouses.ru