Студия Nomo вырезает изогнутые патио и террасы в доме для отпуска на Менорке. Изогнутые стены и сводчатые потолки, расположенные на нескольких ступенчатых уровнях, окружают жилые помещения внутри и снаружи. Дом расположен на возвышенности в элитном жилом районе Бухты Новес. Из него открывается вид на море и близлежащий город Порт-д'Аддая.

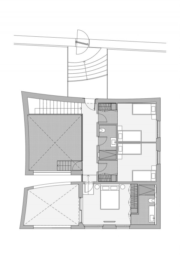
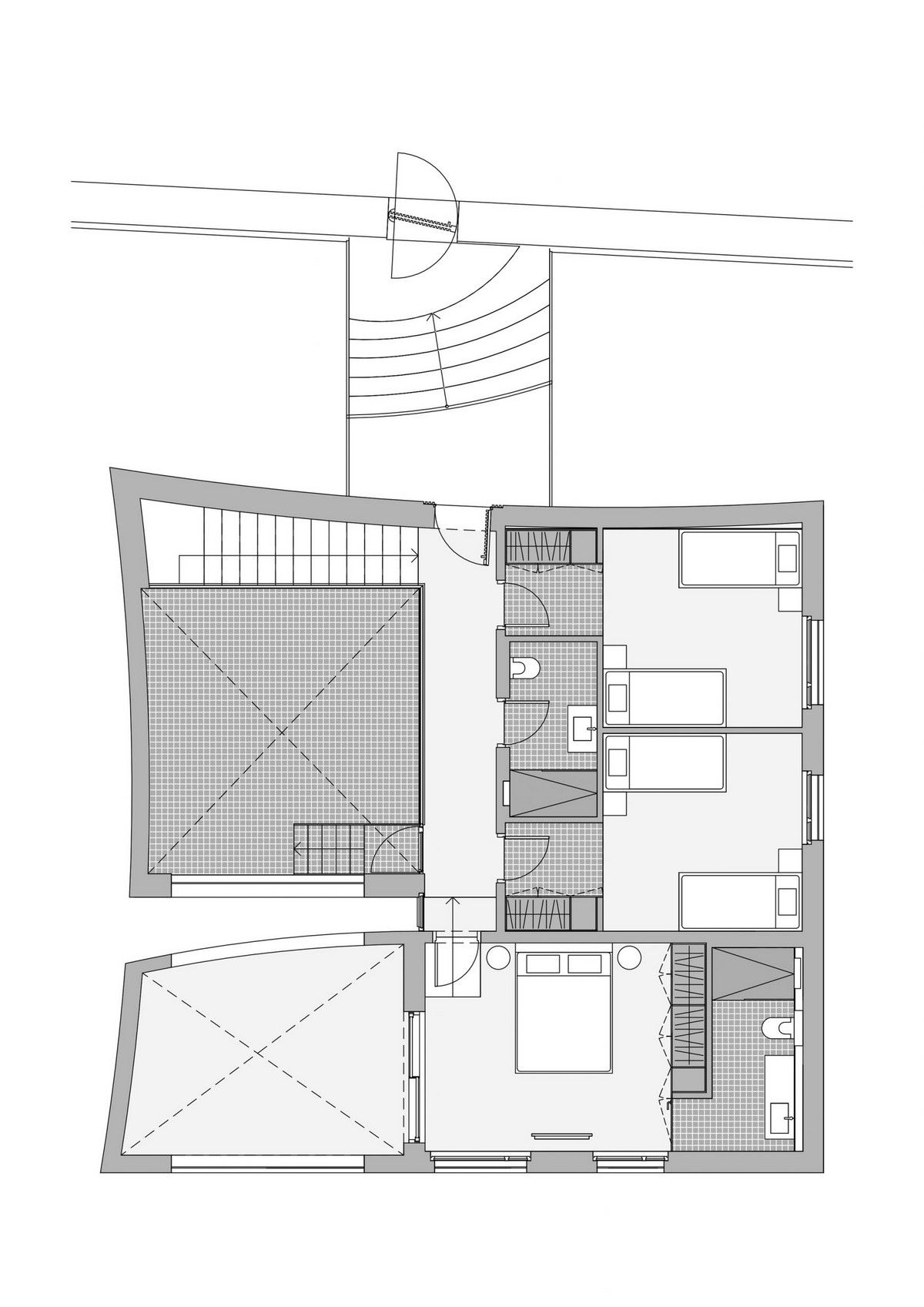
Участок площадью 600 квадратных метров представлял несколько проблем, включая крутой уклон. Он также содержит археологическую ценность, которую необходимо сохранить. Nomo Studio отреагировала на наклонный участок и небольшую площадь застройки, создав дом с компактной площадью основания, тщательно продуманной, чтобы избежать ограниченного пространства. "Изогнув дом на первом этаже, мы смогли избежать археологических раскопок, но при этом максимально увеличить площадь. Затем мы продолжили использовать тот же язык в трёх измерениях", - говорят архитекторы. Конструкция напоминает куб с удалёнными секциями, как будто пересекающимися с гигантскими сферами. В результате двойная изогнутая геометрия придаёт внешнему и внутреннему пространству особый характер.Чтобы выполнить внутреннюю программу, запрошенную клиентами, в пределах небольшой площади здания, жилые зоны расположены на шести ступенчатых уровнях, которые включают несколько патио и террас. В дом можно попасть с улицы с любой стороны на разных уровнях. С верхней улицы по крутому склону идёт мост с изогнутой лестницей и веревочными перилами, а снизу вокруг круглого бассейна вьются ступеньки. Главный вход ведёт на уровень спальни, который соединен с основными жилыми помещениями внизу широкой металлической лестницей с деревянной балюстрадой. По одну сторону от вестибюля находится большой внутренний дворик с застеклёнными стенами с двух сторон, которые образуют защищённое полуоткрытое пространство, подвешенное над бетонным полом. Внутренний дворик позволяет яркому солнечному свету проникать в интерьер и имеет отверстия, обрамляющие вид на море. Универсальное пространство можно использовать для просмотра звезд или просмотра фильмов под открытым небом.




























Название: Изогнутый дом (Curved House)Расположение: Менорка, ИспанияАрхитектура: Nomo StudioФото: Adria GoulaБлог "Частная Архитектура"