Две минималистичные кабины для отдыха построены в 2018 году в прибрежной деревне Матансас, коммуна Навидад, регион О'Хиггинс, Чили, это примерно 2,5 часа езды от города Сантьяго. Авторами проекта, ориентированного на туристический бизнес, является архитектурная студия Croxatto & Opazo Arquitectos. Место для реализации проекта было выбрано уникальное - холм Лагунилья на берегу Тихого океана перед большим, выступающим из моря скальным массивом Лоберо, в котором обитают морские львы и другие виды морских животных. Благодаря оптимальным ветровым и волновым условиям в этой части побережья, Матансас является мировой столицей виндсерфинга и кайтсерфинга.

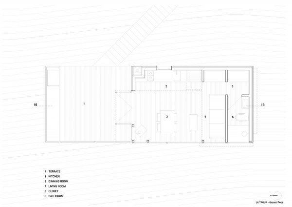
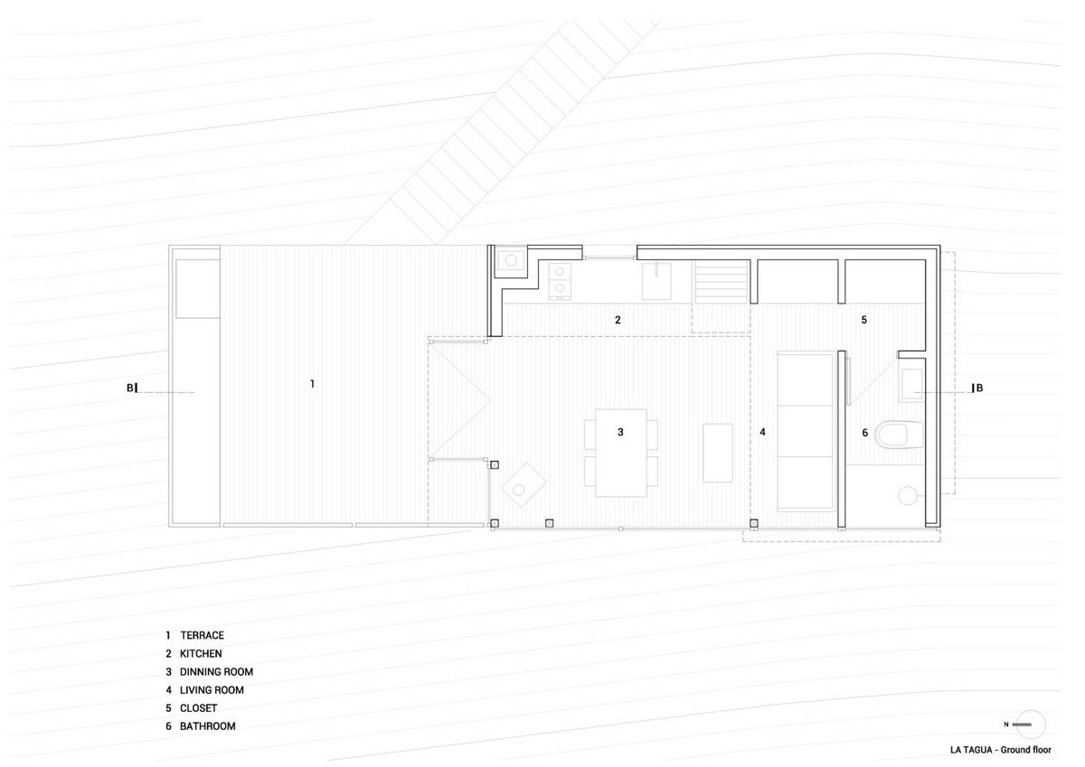
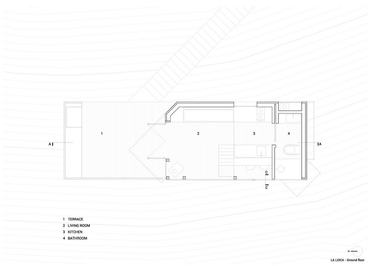
Домики для краткосрочного отдыха, заказчиками которых были два разных клиента с разными требованиями, были спроектированы таким образом, чтобы полностью интегрировать в прибрежный ландшафт. В то же время, они выделяются необычной формой, напоминающей смотровую башню. Чтобы оптимизировать площадь застройки на крутом склоне, строения имеют ярко выраженную вертикальную конструкцию в виде маленьких кубов, грани которых ориентированы на получение лучших пейзажных видов и защиту интерьера от сильных ветров со стороны океана. Строения установлены на склон холма, один на высоте 60, а другой - 80 метров над уровнем океана при помощи деревянной конструкции пилона, поддерживающей основную платформу, над которой разрабатывается программа.Матансас - это район с налаженным производством местной древесины, которая легко доступна как по способам приобретения, так и по цене. Кроме того, древесина - это один из самых надежных и долговечных материалов в прибрежном климате. В связи с этим, архитекторы предпочли использовать дерево в качестве основного материала проекта. Оба домика полностью построены из дерева с использованием пропитанной камерной сосны. Фасады облицованы шпалами из регенерированного дуба, которые были обработаны нефтяными маслами, защищающими древесину от морской коррозии и придающими ей вид, гармонирующий с ландшафтом. Для внутренней отделки применялась сосновая доска, которая выполняет также функцию теплоизоляции.Домики получили названия La Loica и La Tagua в честь уникальных видов птиц, обитающих в этом регионе, и имеют площадь внутреннего пространства 20 и 25 квадратных метров соответственно. Каждый из домиков имеет два уровня и рассчитан на пребывание в нем одновременно двух человек. Минималистичный интерьер соединяет все внутренние пространства как визуально, так и пространственно. Гостиная, столовая, кухня и ванная комната в кабинах расположены на первом этаже, а спальни оборудованы на верхнем уровне, куда можно подняться по вертикальной лестнице корабельного типа. В La Loica предусмотрена одна спальня, в La Tagua - две. Встроенная мебель из древесины светлой сосны привносит ощущение тепла и уюта.На западных фасадах установлены большие окна, которые усиливают ощущение пребывания в смотровой башне и открывают роскошные виды на океан. Входные двери в каждом домике открываются на террасу, расположенную с северной стороны, что позволяет расширить внутреннее пространство и интегрировать с внешним миром. Основная конструкция, в этом случае, действует как щит, прикрывающий террасу от сильных ветров, дующих с юго-запада. Оба строения подключены к электросети, наружное освещение работает от солнечной энергии. Вода в домики доставляется автотранспортом.























coolhouses.ru