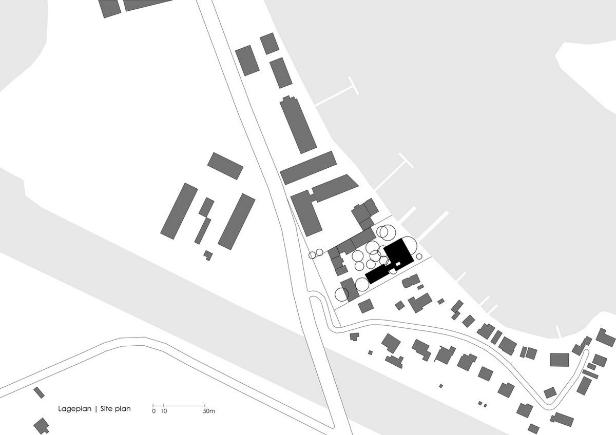
Проект "Дом у озера" (House by the Lake), разработанный архитектурной фирмой Carlos Zwick Architekten BDA, реализован в 2020 году на берегу озера Юнгфернзе, в парковой зоне города Потсдам, Германия. Когда-то эти места были популярным местом отдыха горожан и туристов. Здесь стояло кафе, и тысячи людей отдыхали на берегу живописного озера, наслаждаясь домашним мороженым и лимонадом. На берегу стоял причал для частных лодок и паромов, здесь был даже бальный зал. Со временем все постройки на территории усадьбы обветшали и пришли в негодность. Несмотря на близкое расположение к центру города и красивые пейзажные виды, покупателя на эти полуразрушенные объекты не находилось. Причина была еще и в особенностях места - строения, расположенные в историческом парке, охранялись законом, а строительство новых объектов в пределах 50 метров от берега запрещалось.

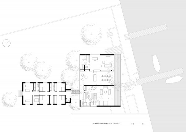
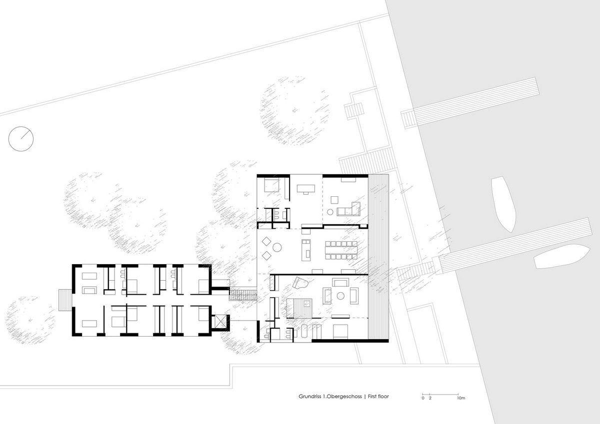
Берлинский архитектор Карлос Цвик (Carlos Zwick), влюбившийся в это идиллическое место и заросшее здание, в 2014 году купил его с мечтой о строительстве здесь большого семейного дома. Приобретая участок с полуразрушенными постройками, Карлос Цвик не знал, сможет ли он получить разрешение на его строительство. Но, несмотря на это, он приступил к работе над проектом, источником вдохновения для которого стал Дом Фарнсуорт (Стеклянный дом) в США, построенный по проекту архитектора Людвига Мис ван дер Роэ в 1951 году.Для утверждения плана застройки потребовалось оформить пять заявок. Окончательный вариант предполагал обновление первоначальных конструкций и полное сохранение и реставрацию террас, которые были известны как императорские, поскольку в прошлом император, действительно, любил пить здесь кофе и любоваться пейзажной картинкой озера. Карлос Цвик бережно отнесся к историческому наследию и постарался также максимально сохранить целостность участка и растущие на нем вековые деревья.Дом площадью 712 квадратных метров разделен на два объема - главный дом и пристройку, расположенную к нему под прямым углом. Здание стоит на 40 диагональных железных сваях, которые приподнимают его на высоту трех метров над землей, открывая панорамный вид на озеро и предоставляя возможность сохранить существующие деревья. Старый клен, оказавшийся на площадке, также был сохранен и теперь растет посреди гостиной. Императорские террасы уважительно поддерживаются десятью отдельными фундаментами.Экологический баланс объекта и природного ландшафта обеспечивается натуральными строительными материалами и солнечной тепловой системой, установленной на крыше. Фасады дома облицованы вертикальными деревянными рейками из лиственницы, что позволяет строению легко интегрироваться в кроны вековых дубов и каштанов. Реализация проекта сопровождалась возникновением определенных трудностей, связанных с расположением участка. Густые деревья и близость воды не позволяли использовать серьезную технику, поэтому все работы по возведению здания велись только с помощью мобильного телескопического погрузчика.Главный фасад длиной 22 метра обращен к озеру, а по всей его длине на высоте восьми метров над уровнем воды простирается терраса со стеклянным ограждением, создавая ощущение парения прямо над озером. Появляющиеся на озере лебеди и цапли, а вечерами выползающие на мелководье выдры, оказываются на уровне глаз отдыхающих на террасе, что делает отдых особенно впечатляющим. Три отдельные жилые зоны через раздвижные стеклянные двери связаны с террасой и имеют беспрепятственный вид на озеро.Центр дома занимает социальная зона открытого плана - гостиная и столовая-кухня. В центре столовой установлен стол из оливкового дерева длиной 7,5 метров. Большой камин в гостиной привносит ощущение домашнего уюта. Украшением интерьера являются современные картины, в некоторых помещениях они занимают всю 3-х метровую высоту стены.








































coolhouses.ru