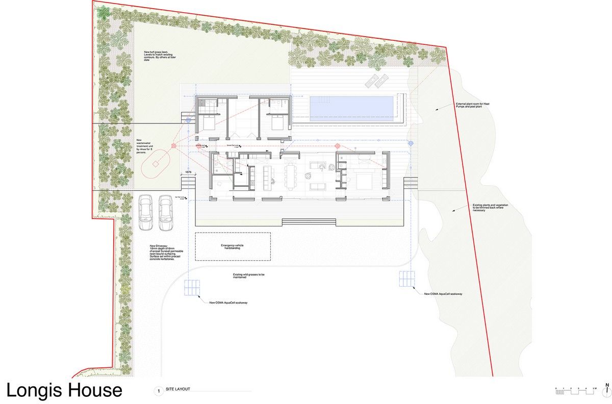
Проект нового дома на месте старого жилища на острове Олдерни, одном из Нормандских островов, части коронного владения Британской короны Гернси, разработан архитектурным бюро SOUP Architects и реализован в 2017 году. Существующее здание, построенное 70 лет назад, представляло собой набор ветхих пристроек, уже не пригодных для использования. Новыми владельцами дома стала большая семья, планирующая проводить в нем все свободное время.

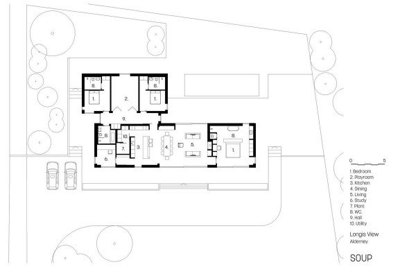
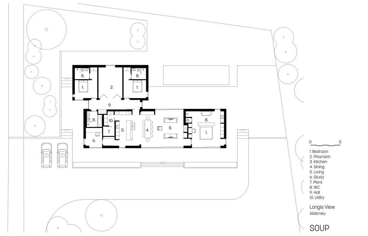
Перед архитекторами стояла задача построить новый энергоэффективный дом с низкими эксплуатационными расходами, наполненный естественным светом и имеющим роскошные виды на окружающий ландшафт. В соответствии со строгими правилами планирования, площадь собственности могла быть увеличена только на 15% по сравнению с жилой площадью существующего жилища. Строительство дома также было связано с некоторыми трудностями из-за удаленности участка. С целью их преодоления архитекторы использовали сборные конструкции, выполненные за пределами строительной площадки. При проектировании ограждающих конструкций здания была использована высокая степень теплоизоляции и внутренней отделки.С целью обеспечения необходимого уровня конфиденциальности дом расположен на склоне холма немного к северу, а чтобы максимизировать захватывающий вид на побережье, он ориентирован на южную сторону. Дом состоит из двух одноэтажных, соединенных между собой объемов общей площадью 250 квадратных метров. Центральную часть основного блока занимает социальная зона открытого плана, объединяющая гостиную, столовую и кухню.Стеклянные раздвижные двери, расположенные с двух ее сторон, связывают жилое пространство с внешними террасами, на одной из которых находится открытый бассейн. В восточном крыле объема размещается главная спальня с ванной комнатой, в западном крыле - рабочий кабинет. Дополнительные спальни с индивидуальными ванными комнатами для семьи и друзей расположены во втором, меньшем по площади объеме, отделенном от основного пространства входным коридором.Комплексный пакет столярных изделий, включающий кухонную мебель, двери, гардеробы и обеденный стол, был разработан для проекта дизайнером Домиником Эш (Dominic Ash). Красивый вид и прочность им обеспечивает простая палитра вяза и кориана.















coolhouses.ru