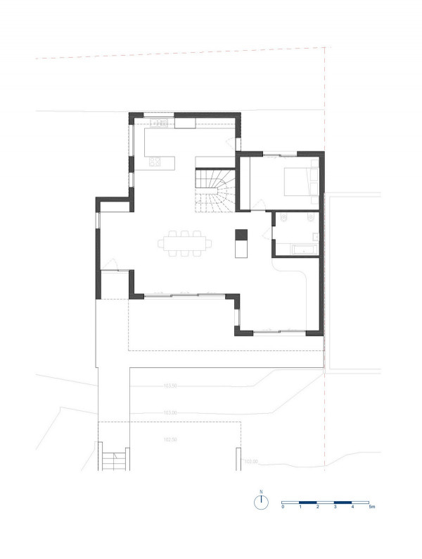
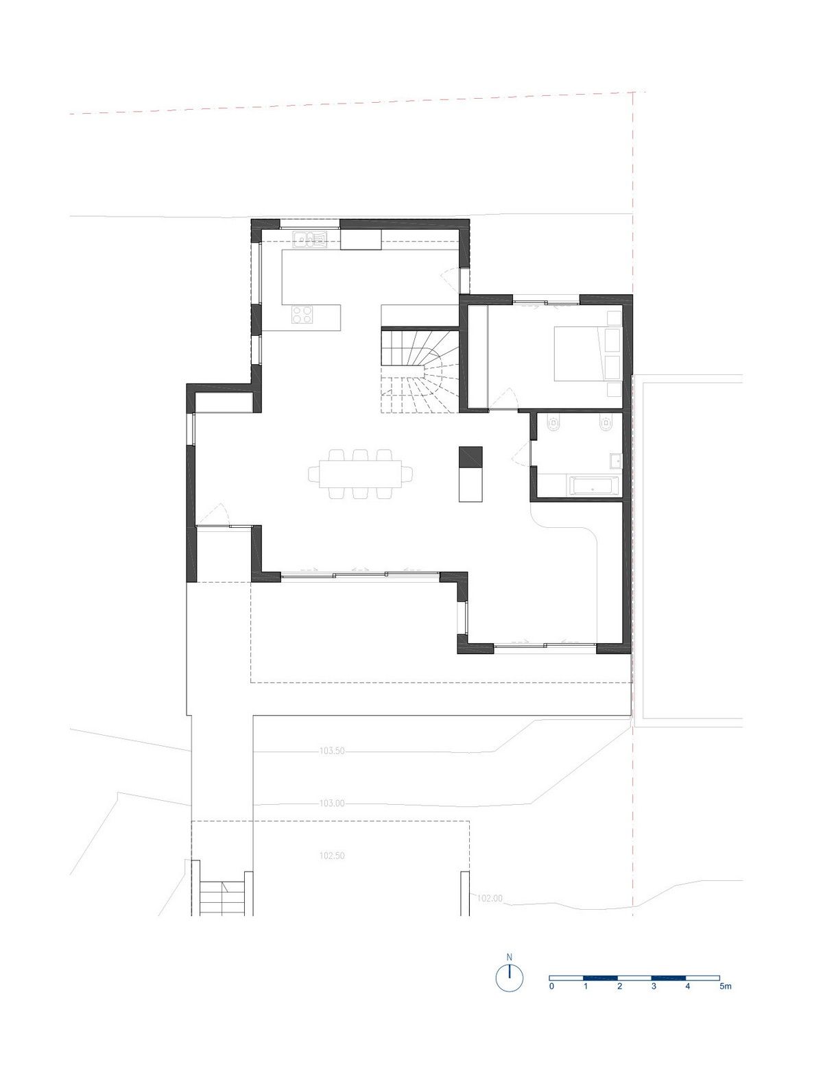
Задача заключалась в том, чтобы реконструировать существующее одноэтажное здание, являющееся частью двухквартирного дома, и построить еще один этаж. Строительные нормы требуют оставить 3 метра до линии, разделяющей участок и здание посередине, чтобы можно было поднять только часть здания.

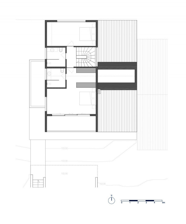
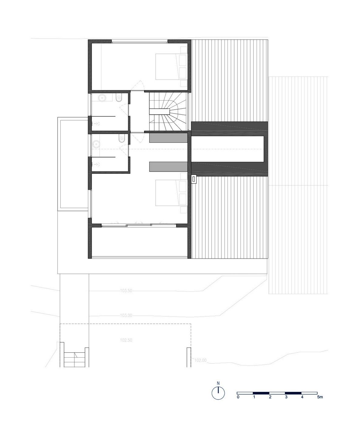
Цель архитекторов заключалась в том, чтобы создать что-то, что всё ещё является частью оригинального здания, особенно потому, что другая половина не будет изменена, но также сделать ещё один шаг вперед, придав новой части современный вид и отличая ее от старой. Решение было очень простым: новый проект принимает оригинальную форму крыши этажом выше, создавая большую уравновешивающую террасу, которая придаёт ей довольно динамичный вид. Смена материала на этом уровне - от белой штукатурки до пробковых панелей, а длинные горизонтальные окна подчёркивают динамичность. Балансирующий балкон обеспечивает тень для широких проёмов и укрытие для зоны отдыха на открытом воздухе. В деревне Канису на острове Мадейра круглый год очень мягкий климат, поэтому семейная жизнь сосредоточена в уединённом месте, соединённом с садом.Нижний этаж задуман как открытое пространство для кухни, столовой и гостиной, где вы можете наслаждаться светом, зелёным садом и видом на океан между деревьями и соседними домами. Дополнительная спальня и ванная комната завершают этот этаж, но родительский люкс расположен наверху, где у вас есть широкий вид на океан и закрытый частный балкон. Первый этаж планировалось отремонтировать, просто освободив от некоторых внутренних стен, и только верхний этаж должен был быть построен из лёгкого стального каркаса, но, поскольку первоначальная конструкция оказалась очень слабой, весь дом был перестроен с использованием стального каркаса.





















Название: PEC HouseРасположение: Канису, Мадейра, ПортугалияАрхитектура: Mayer & SeldersСтроительство: 2017Общая площадь: 210 м2Фото: Dirk MayerБлог "Частная Архитектура"