Концепция дизайна этого дома была вдохновлена окружающим ландшафтом, далекими видами на меловые скалы и близостью дороги. Фасад со стороны улицы образован наклонной изогнутой кирпичной кладкой с остеклением, обеспечивающей прочный экран и подчеркивающей изгиб дороги, в то время как остальные фасады имеют обширное остекление с деревянной облицовкой.

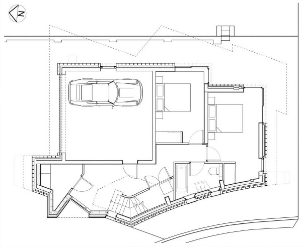
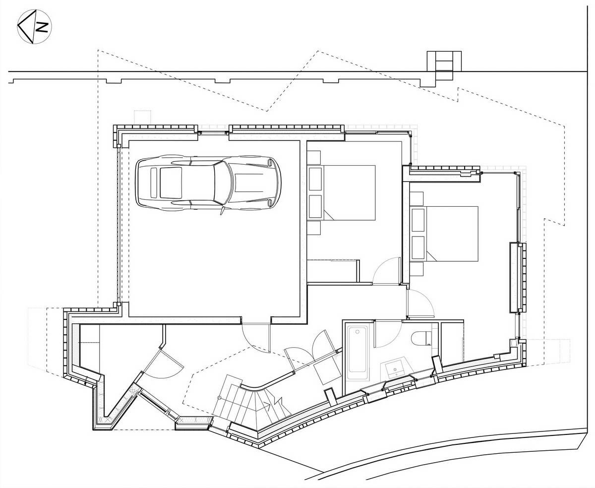
Участок расположен рядом с песчаными дюнами в районе выдающейся природной красоты, на повороте длинной набережной, в конце полосы отдельно стоящих домов на берегу моря, построенных с середины прошлого века до наших дней. Дизайн создает динамическую конфигурацию, направленную на обеспечение различных пространственных ощущений при перемещении по зданию и вокруг него. План и вертикальные формы состоят из усечённых треугольников, которые перекрываются, образуя неправильные ромбовидные формы, которые совпадают с основными видами на этот уникальный морской пейзаж. Хотя участок относительно большой и простирается до верхней отметки, фактическая площадь застройки была ограничена, что усложнялось необходимостью парковки и поворота на уровне первого этажа.
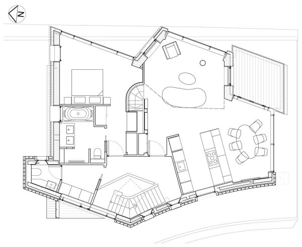
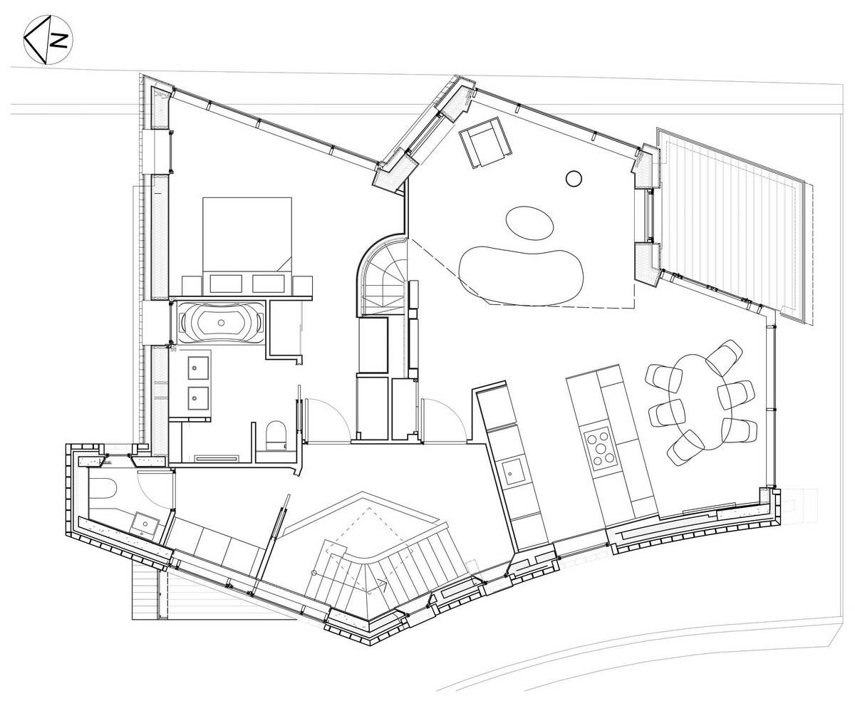
Внутренние помещения состоят из гостиной и главной спальни на первом этаже; консольный балкон на первом этаже возвышается над дюнами, выходя на пляж и пролегающий за ним Ла-Манш. Собственная терраса расположена на уровне мезонина, а дополнительные спальни на втором этаже в более интимной обстановке под дюнами. Фасад на набережную подчеркивает жилую зону двойной высоты с большим усеченным треугольным окном, выходящим на море. Наклонный профиль жилого помещения с внешней деревянной обшивкой перекликается с перевернутыми корпусами кораблей, которые постоянно видны на горизонте.













Название: Камни (The Stones)Расположение: Грейтстоун-он-Си, АнглияАрхитектура: CZWG ArchitectsОбщая площадь: 200 м2Фото: CZWG ArchitectsНаграды: 2019 Manser Medal, шорт-листБлог "Частная Архитектура"