Остатки традиционного каменного дома в старой португальской деревне были отреставрированы и получили эффектную кирпичную вставку из кирпича. Новый дом с двумя спальнями не выходит за пределы первоначального здания, а старые каменные стены получили новые проёмы, террасы и балконы.

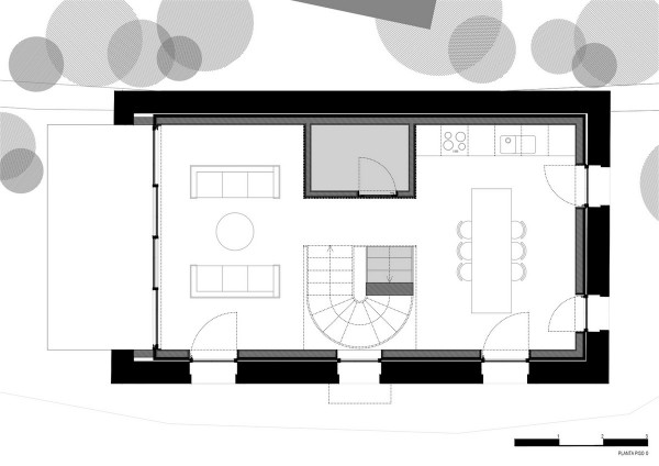
"Намерение состояло в том, чтобы вызвать у наблюдателя противоречивые чувства, - объяснил архитектор. - Он исследует баланс и напряжение между существующей и предлагаемой формами". На первом этаже находятся социальные пространства - кухня и столовая на севере и гостиная на юге. Гостиная выходит на приподнятый патио через раздвижные двери и защищена от солнца бетонным навесом. Винтовая лестница из бетона и дерева ведет на второй этаж, где две спальни расположены по обе стороны от центральной ванной комнаты. В спальнях новая вставка была отодвинута от существующих стен, чтобы создать две небольшие террасы с краями, определяемыми существующим парапетом, который поднимается, образуя фронтоны с каждой стороны.Отверстия в новом объёме выровнены с отверстиями в старом, сохранены глубокие углубления и обрамлены тонкой металлической рамкой. На западном фасаде сохранился оригинальный балкон. Преимущественно белые интерьеры контрастируют с областями в центре плана - кладовой на первом этаже и ванной комнатой наверху, облицованной ребристыми деревянными панелями Sapele.


































Название: Дом Коробка (Box House)Расположение: Ромаригайнш, ПортугалияАрхитектура: Tiago SousaФото: Ivo Tavares StudioБлог "Частная Архитектура"