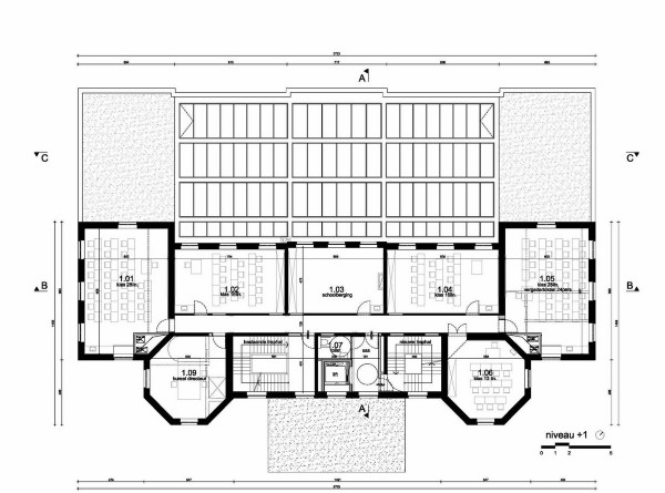
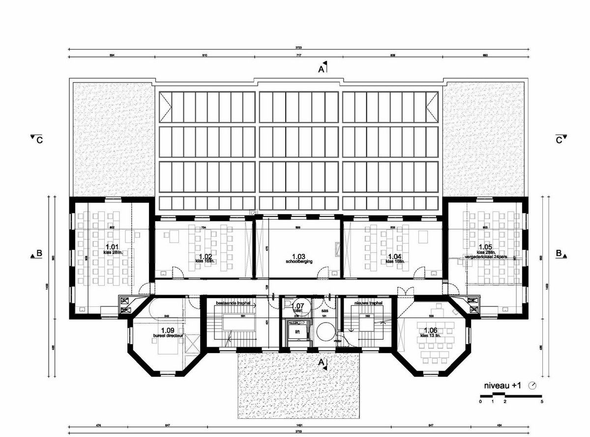
Реконструкция старинного замка, построенного в 1864 году в национальном парке города Антверпен, Бельгия, в школу колледжа Groenendaal выполнена в 2017 году по проекту HUB. Замок был построен в 19 веке в стиле неофламандского Возрождения. В 1924 году здание было приобретено колледжем Groenendaal и использовалось как школа-интернат. В1950-х годах к оригинальному зданию были добавлены несколько комнат и флигель, который занял половину площади подвала и первого этажа.

Пристройка нарушила первоначальные отношения между замком и парком, при которых исторические помещения выходили непосредственно в парк и были наполнены солнечным светом и свежестью пышной зелени. В результате многие исторические помещения превратились в темные, непригодные для использования в образовательном процессе комнаты. Кроме того, тяжелая бетонная конструкция и небольшая высота флигеля не позволяли эффективно использовать новые пространства.Перед архитекторами стояла задача оптимизировать полезную площадь здания, функционально улучшить классные комнаты, а также предусмотреть дополнительные пространства для реализации многофункциональной и общественной программы школы. Реализация проекта испытывала серьезные ограничения, связанные с исторической ценностью замка и не допускающие каких-либо кардинальных изменений в его архитектурном облике. Расположение объекта в парке с аналогичной природно-исторической ценностью также исключала возможность увеличения существующего объема.Для выполнения поставленных задач архитекторы решили убрать пол в пристройке и заменить сплошную крышу стеклянным куполом. Получившееся в результате двойной высоты свободное пространство позволило обеспечить большую степень его гибкости, а также проникнуть дневному свету глубоко внутрь здания. Кроме того, современное по своему характеру пространство восстановило первоначальные связи между замком и парком, а также предоставило возможность организовать многоцелевую и общественную программу во флигеле, оставив исторический замок для обычной школьной программы.Обновленный особняк площадью 2200 квадратных метров полностью соответствует девизу школы "Пространство для развития". Комфортная учебная среда, максимально наполненная естественным солнечным светом, гибкие оптимальные пространства для экспериментальной работы, открытые помещения с широким обзором и контактом с окружающей зеленой зоной открывают широкие возможности для организации эффективного образовательного процесса. Кроме того, кампус с его просторными открытыми и закрытыми спортивными сооружениями стремится стать гостеприимным местом для молодежных организаций и спортивных клубов.






















coolhouses.ru