Частный дом Kenwood Lee, спроектированный студией Cousins & Cousins, находится в Лондоне, Великобритания. Он был разработан для строителя, который также выступил в качестве главного подрядчика по проекту. В резиденции представлен целый ряд материалов и фактур, включая кирпич, бетон, дуб, мрамор и металл. А ключевыми элементами в интерьере стали подвесные качели и винтовая лестница.

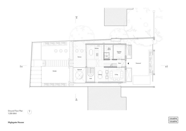
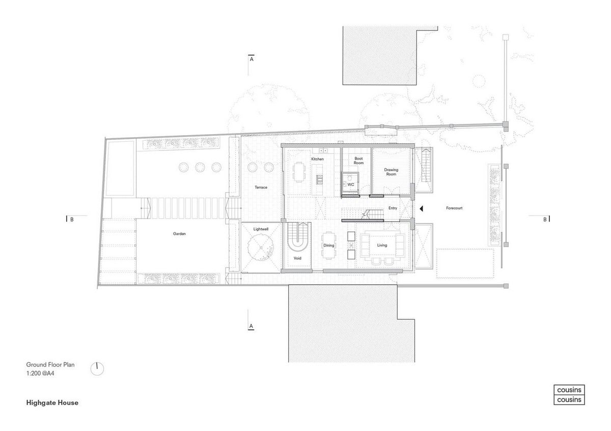
Дом расположен в природоохранной зоне, обращён к саду и прилегает к лесу в части заднего двора, где фасад с панорамным остеклением раскрывает интерьер. Со стороны дороги здание выглядит весьма традиционно, чтобы соответствовать своему окружению.Четыре этажа здания организованы вокруг трёхэтажного бетонного ядра. Гостиная зона отделена мраморным камином от кухни и столовой со стеклянной крышей. Винтовая лестница с дубовыми ступенями ведёт в подвал, где спроектированы кинотеатр, бассейн, гостевая комната и тренажёрный зал, освещаемые естественным дневным светом. Две симметричные спальни вокруг центральной ванной комнаты. Верхний уровень занимают главная спальня, большая гардеробная и ванная комната. Три мансардных окна в металлической крыше притягивают свет на последний этаж и являются ещё одной отсылкой к формальному языку соседних домов.































hqroom.ru