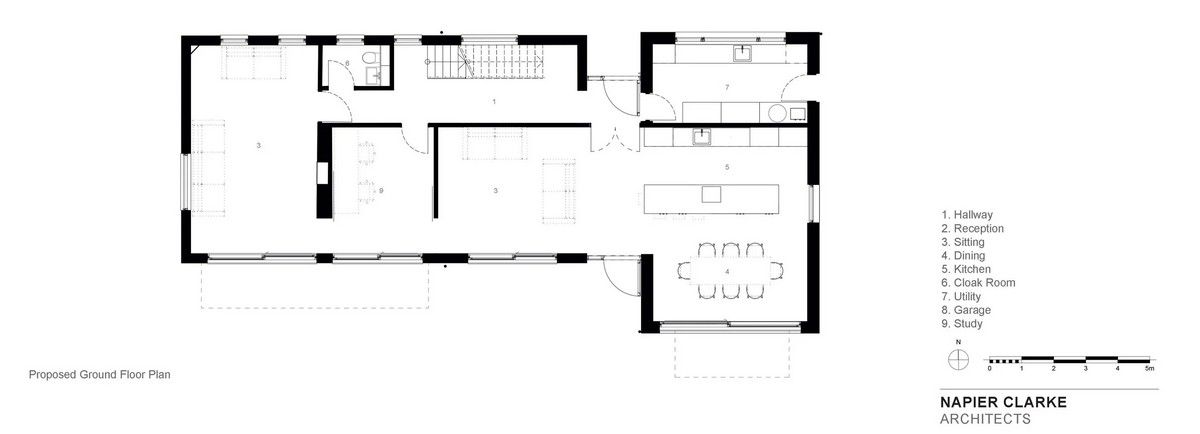
Кирпичный дом с четырьмя спальнями был ранее расширен с остроконечной пристройкой, в которой находился гараж. Поскольку он расположен в зоне зеленого пояса, любые дальнейшие расширения здания были предотвращены. Студия Napier Clarke работала с заказчиками, чтобы определить, лучше ли снести дом и построить новый на существующем месте или модернизировать существующее здание.

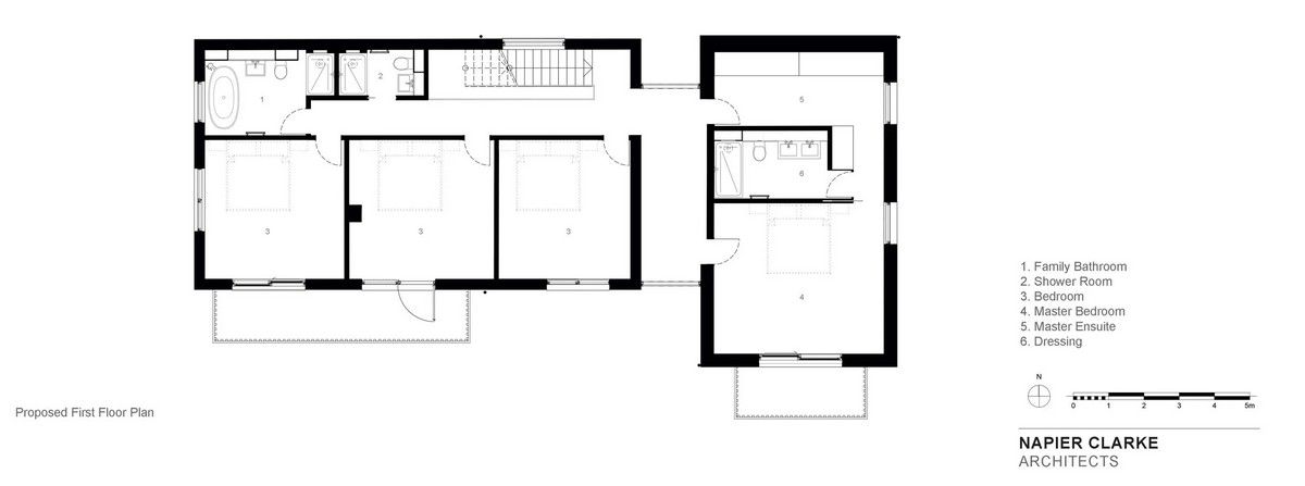
"Существующий дом 1970-х годов был довольно скучным, плохо расширенным зданием, которое не обновлялось около 30 лет", - сказали в студии. Клиенты согласились сохранить и модернизировать здание 1970-х годов, поскольку оно предлагало наиболее экономичное решение, а также было более устойчивым, чем снос и перестройка. Чтобы достичь необходимых современных жилых помещений, архитекторы предложили организовать интерьер более эффективным способом и переоборудовать гараж, чтобы сделать его частью дома. Благодаря расположению здания в районе Чилтерн с выдающейся природной красотой, обновления необходимы для сохранения, контекстуализации и улучшения существующего здания. Первоначальное здание из лондонского кирпича было сохранено, а новые окна были добавлены, чтобы придать ему более современный вид. Светло-серая пластиковая обшивка, нанесенная на пристройку гаража, была снята, и вся конструкция была обёрнута обугленной древесиной. Основным вмешательством является удаление части крыши и стен между остроконечной пристройкой и существующей кирпичной конструкцией. Это приводит к двум различным формам, соединенным новым застекленным элементом.Вход в холл, где переставленная лестница поднимается через пустоту двойной высоты, соединяющую два этажа. Бывший гараж теперь содержит подсобное помещение слева от входа, а также кухню, расположенную в задней части дома. Кухня соединяется с кабинетом и формальной гостиной, расположенной линейно, так что все они выходят на задний сад и террасу у бассейна. На втором этаже планировка была также изменена, чтобы обеспечить три идентичные спальни с двуспальными кроватями с общей ванной комнатой и душевой комнатой, а также главную спальню с собственной душевой комнатой и гардеробной. Отремонтированный интерьер отличается минимальной внутренней палитрой, с белыми стенами и потолками, контрастирующими с черными встроенными шкафами, дверями и металлоконструкциями, которые дополняют деревянное двускатное здание.















Название: Дом Самарканд (Samarkand House)Расположение: Литтл-Кингсхилл, Грейт-Миссенден, Бакингемшир, АнглияАрхитектура: Napier Clarke ArchitectsФото: Napier Clarke ArchitectsБлог "Частная Архитектура"