Проект Stepping Stone House разработан студией Craig Tan Architects в сотрудничестве с Custom Co и реализован в 2016 году в Армадейл, внутреннем пригороде Мельбурна, штат Виктория, Австралия. Отходя от традиционного расположения садов перед передней и задней части здания, основной задачей проекта стало объединение сада на участке в единое, обращенное на север пространство перед домом.

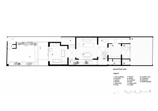
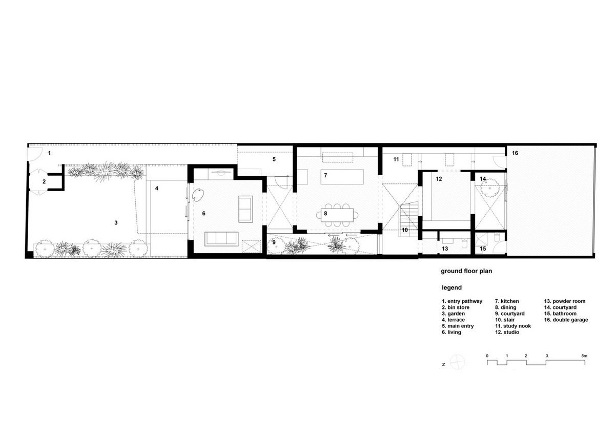
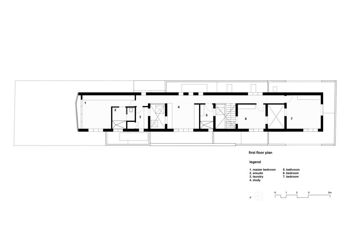
Двухэтажный семейный дом площадью 302 квадратных метров имеет глубокий и узкий план с эффектным контрастом между формой и пространственным восприятием. Программу дома формирует комбинация павильонов, расположенных по всему участку подобно ступенькам. Связь между павильонами и промежуточными пространствами между ними создает ощущение большого свободного пространства и предоставляет большую возможность для взаимодействия членов семьи.Пространства, занимающие нижний этаж дома, в том числе входная зона, сад, библиотека, световые колодцы и лестница, напоминают переулки, которые увеличивают уровни интерактивных порогов в основные жилые зоны - гостиную, столовую и кухню. Вытянутые вверх на второй этаж павильоны охватывают длинный линейный объем приватной зоны с четырьмя спальнями.Верхний этаж оформлен в виде элегантной консольной балки с плотной перегородкой из фиброцементных панелей с безрамным остеклением и интегрированными вентиляционными панелями, которые объединяют комнаты в элегантный объем. В консольной части этажа размещается главная спальня с круглым проемом-окном, призванным создать более мягкую интимную атмосферу. Выступающий консоль обеспечивает защищенное место для садовой террасы внизу.Тонированные наклонные плиты из сборного железобетона и павильоны, облицованные деревянным шпоном, усиливают связь между экстерьером и интерьером, а оригинальные материалы внедряются глубоко в дом. Полы из промасленного дуба в павильонах контрастируют с мраморными каменными полами в межстенных колодцах. Световые колодцы и дворы двойной высоты отслеживают траекторию движения солнца в течение дня и передают игру света и тени в пространство, делая его особенно живым и динамичным. Присутствующие в интерьере натуральные материалы, среди которых дерево и мрамор, способствуют созданию атмосферы 70-х годов.
































coolhouses.ru