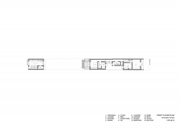
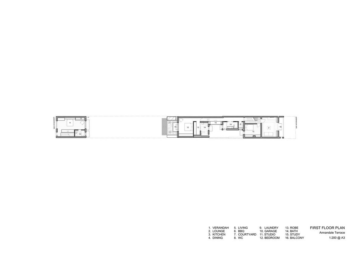
Проект Annandale Terrace, включающий ремонт семейного дома в городе Сидней, Австралия, разработан архитектурной компанией Sam Crawford Architects и реализован в 2020 году. Дом с террасой является местом жительства заказчика с самого детства. Основная задача проекта состояла в обновлении внутренней программы дома с акцентом на создание светлых минималистичных пространств, которые бы стали эффектным фоном для большой коллекции произведений искусства хозяина дома.

Реконструкция здания была осуществлена под влиянием возможностей, связанных с особенностями участка. Длинный и узкий, ширина его немного более 5 метров, позволила внести следующие коррективы. Были добавлены новые помещения, в числе которых пристройка на 2,5 метра к столовой и рабочий кабинет на чердаке. На верхнем этаже над гаражом, который расположен в задней части участка, была оборудована студия. Обновлены кухня и ванная комната, заменены пол и отделка. Чтобы создать зону для отдыха и развлечений на открытом воздухе, был перепроектирован сад. Общая площадь дома после реконструкции составила 273 квадратных метров.Основное внимание в процессе работы уделялось наполнению пространств естественным светом. Так, существующие окна в кухне были увеличены, чтобы улавливать отраженный свет от выходящего на юг светового колодца. Столовая была наполнена светом за счет окна с подсветкой и потолочного окна. Самой темной частью дома была лестничная клетка, поэтому архитекторы полностью изменили ее дизайн, превратив в светящееся скульптурное пространство. Новая лестница, соединяющая первый этаж со студией на чердаке, выполнена из перфорированного металла, который позволяет дневному свету проникать из рабочего окна в крыше на первый этаж.В проекте использованы материалы нейтральной палитры. Новая пристройка выполнена из бетона, широкие половицы изготовлены из древесины пихты Дугласа, лестница - из перфорированного металла. В ванных комнатах пол покрыт плиткой террацо, которая идеально сочетается с каменными столешницами умывальника и мебелью цвета шалфея. Элегантная кухня со столешницей из нержавеющей стали и встроенной раковиной наполнена уютом и комфортом.Система освещения выполнена в минималистичном стиле. Потолочные даунлайты и светильники на гибких магнитных треках на кухне и в столовой позволяют расставить необходимые акценты.




















coolhouses.ru