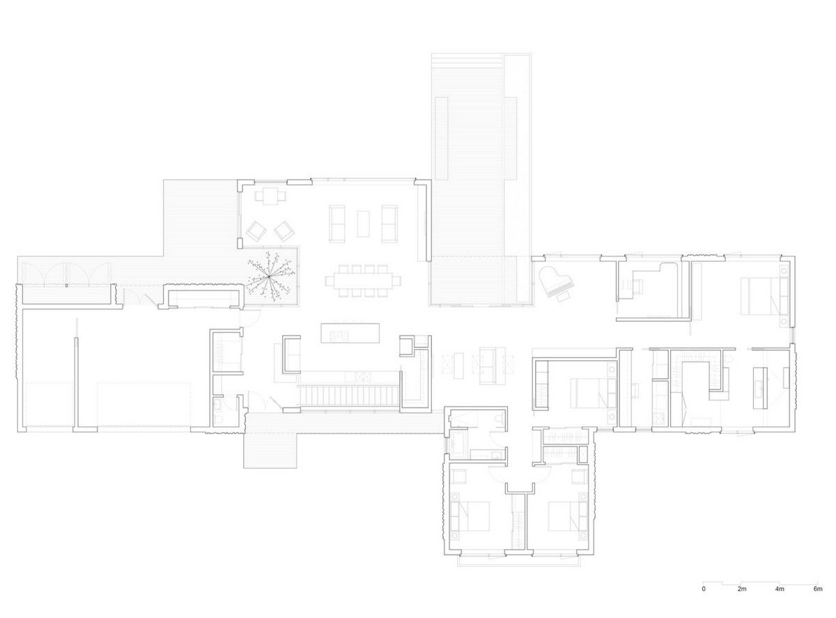
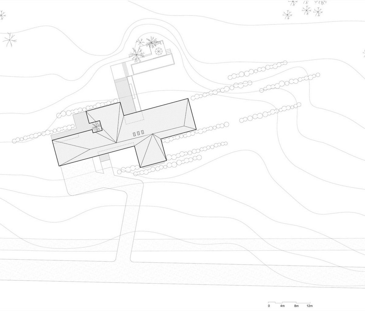
Vallée du Parc Residence - это проект загородного дома, реализованный архитектурным бюро Chevalier Morales Architectes в Валь-дю-Парк, Канада. "Резиденция в Валь-дю-Парк" площадью 434 квадратных метров расположена в сельской долине в Мориси, юго-центральной части Квебека. Планировка первого этажа, навеянная работами американского архитектора Фрэнка Ллойда Райта, возникла в результате комбинации разнообразных террас с автомобилем. Сложная угловатая линия крыши, вступающая в геометрическое взаимодействие с окружающими холмами, привлекает внимание, даже на большом расстояние от дома.

Резиденция расположена на участке, где ранее располагалась съемочная площадка, где были сняты большинство сцен легендарного телесериала 90-х "Эмили. Дочери Калеба". Бескрайние виды, холмистая местность, старые амбары, плетни и дикие цветы: каждая деталь участка бесконечно напоминает об этом историческом повествовании из жизни деревенского Квебека начала XX века.Дом состоит шести спален, двух семейных гостиных, четырех ванных комнат и трех гаражей, расположенных преимущественно на первом этаже.Крыша, с её многочисленными наклонными плоскостями, неправильными углами и линиями, а также полным отсутствием свесов, была задумана как геометрическая интерпретация характерной холмистой местности участка. Вместо слияния с горизонтом, крыша создаёт архитектурный диалог с окружающим ландшафтом. Она бесконечно изменяется в соответствии с перспективой и точкой обзора резиденции.Намерение связать дом и участок авторы проекта достигли благодаря внедрению серии террас, каждая из которых проецирует себя прямо в поле. Главная терраса расположена неподалеку от входа, образуя эффект сжатия. Она вжимает окружающий ландшафт в дом, образуя укромный садик. Идея этого сада продиктована самой архитектурой дома и является производной от работ Райта.Внешние стены из деревянных досок были спроектированы для создания динамичной и уникальной текстуры, определяемой бесконечно меняющимся естественным освещением на протяжении дня и в разные времена года.




















Архитектор: Chevalier Morales ArchitectesСайт: chevaliermorales.comРасположение: Валь-дю-Парк, КанадаФотограф: Géniex, Aubin Pélissierhqarch.ru