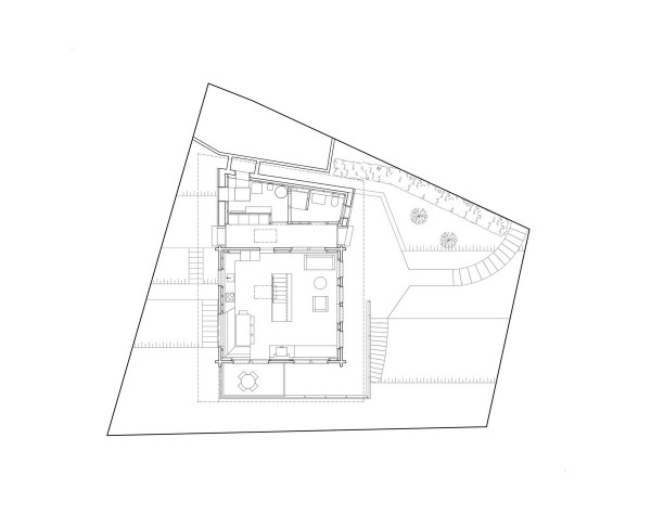
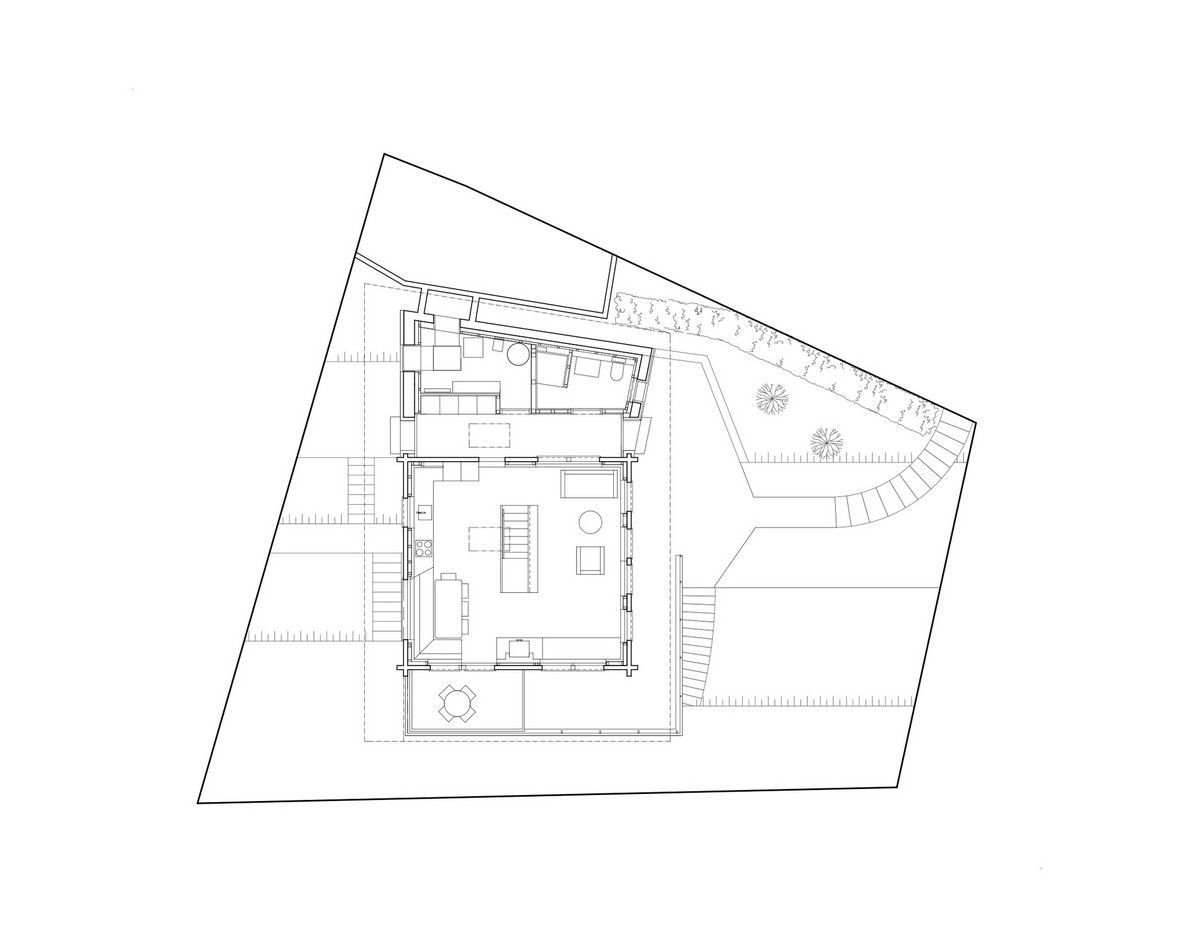
Проект реконструкции шале для отдыха в горнолыжном курорте Фальшен, коммуна Райхенбах-им-Кандерталь, кантон Берн, Швейцария, разработан архитектурным бюро dolmus Architekten и реализован в 2016 году. Проект представляет собой ремонт и реконструкцию старого двухуровневого шале и имеющейся к нему одноэтажной пристройки общей площадью 130 квадратных метров.

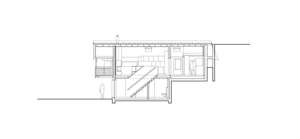
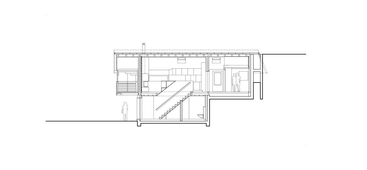
В процесс ремонтных работ была полностью обновлена и расширена двускатная крыша, которая теперь покрывает все строение полностью. Ранее основное здание и пристройка имели отдельные двускатные крыши. Фасад пристройки был также адаптирован к существующей структуре с помощью горизонтальной деревянной облицовки. В результате, новая крыша и идентичная деревянная облицовка объединили шале и пристройку в одно здание. Входная зона и хозяйственные помещения были размещены в пристройке.В основном верхнем уровне старого шале были снесены все внутренние стены, а в образованном большом пространстве размещена социальная зона открытого плана, которая объединила гостиную, столовую и кухню. Облицовка интерьера основного этажа, а также встроенная мебель и двери выполнены из брашированных трехслойных панелей с матовой и влажной отделкой, которые придают пространству особенную теплоту и уют. Дровяной камин, обшитый деревом, создает комфортную атмосферу и располагает к приятному времяпровождению. Основное помещение зонируется узкой деревянной лестницей, ведущей на нижний уровень, где оборудована приватная зона - две спальни и одна ванная комната. Стены в этой части дома имеют глиняную штукатурку, а пол, потолок и мебель также выполнены из светлого дерева. Установив внутреннюю изоляцию и новую крышу, архитекторы смогли создать проект, полностью удовлетворяющий новейшим энергетическим требованиям.















coolhouses.ru