Дом, построенный примерно в 1914 году на небольшой ферме в Шпревальде, примерно в 80 км к югу от Берлина, подвергся капитальному ремонту. В ходе этого процесса были обновлены все конструкции и технология здания, кроме окон и крыши.

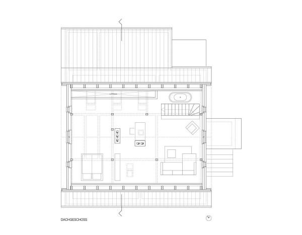
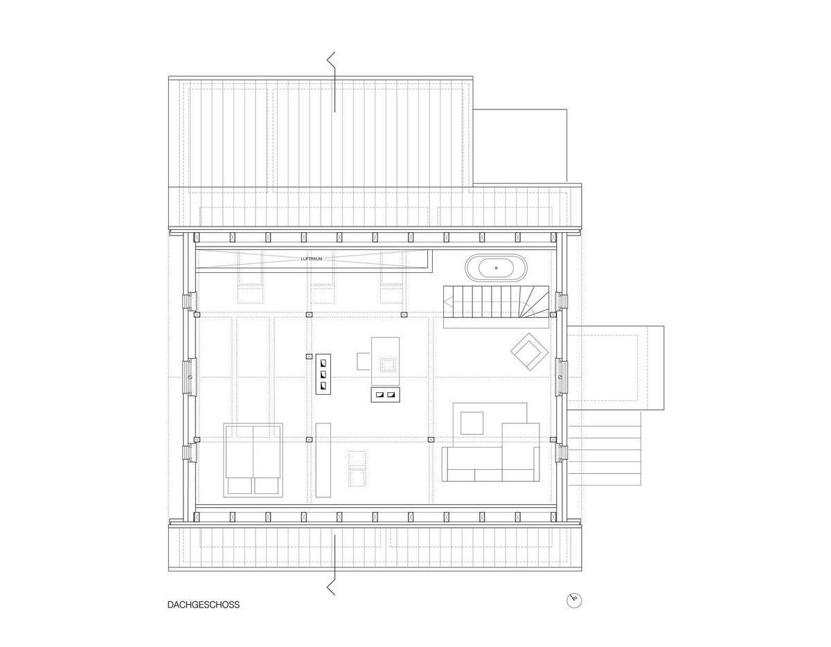
На первом этаже две существующие комнаты были объединены в большую кухню с гостиной, которая получает дополнительный дневной свет с верхнего этажа через световой колодец. Две спальни предназначены для двоих детей или для гостей с семьей. В результате сноса всех накопившихся деталей и элементов на чердаке получилось единое жилое пространство, которое можно использовать гибко. Два теперь отдельно стоящих дымохода разделяют открытое пространство на разные зоны, такие как гостиная, офис, игровая зона и главная спальня. Полы выполнены из тёмного линолеума на первом этаже и из массива местной сосны на верхнем. На веранде устроена небольшая гончарная мастерская.





















Название: Дом Шпревальд (Spreewood House)Расположение: Шпревальд, ГерманияАрхитектура: Club Marginal ArchitektenСтроительство: 1914Реконструкция: 2021Общая площадь: 230 м2Фото: Diana Sophie FugenerБлог "Частная Архитектура"