11 февраля в 22:09

Чёрный дом со светлым интерьером в Московской области

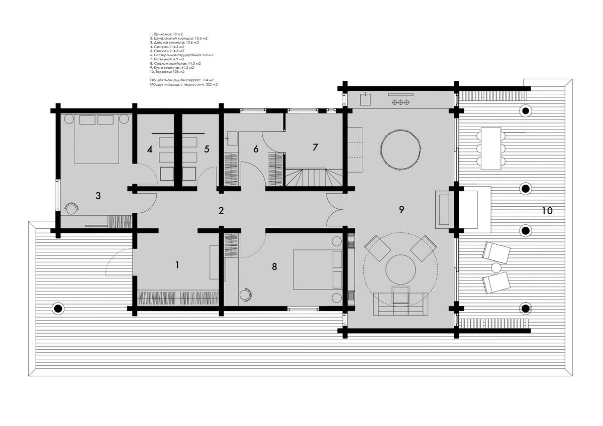
Одноэтажный деревянный дом запроектирован для круглогодичного проживания в подмосковной деревне со спокойным рельефом. Архитектурное решение - объёмно-пространственная композиция, симметричная в основе, с двухскатной кровлей. Широкие крыши и большие свесы кровли объединяют объём и акцентируют его связь с ландшафтом.



Размещение дома на участке и его планировка продиктованы ориентацией по сторонам света, расположением подъездной дороги, а также существующих вокруг постройки зданий на соседних участках и зелёных насаждений. Стилистически дом решен в эстетике современного деревянного зодчества. Цветовое решение - тёмные фасады снаружи со светлыми пространствами внутри. Планировка дома выполнена с учетом функционального зонирования помещении: общественные (гостевые) и частные (приватные) зоны. Общая площадь помещении составляет 138 квадратных метров, площадь террас навеса - 114 квадратных метров.





































Название: Чёрный дом в деревне (Black House in the Village)Расположение: Московская область, РоссияАрхитектура: Федор БеляевСтроительство: 2021Общая площадь: 138 м2, площадь террас - 114 м2Фото: Илья ИвановБлог "Частная Архитектура"
Loading...

Чтобы оставить комментарий, необходимо авторизоваться:


Смотри также

Компиляция Жесткая посадка самолета Ан-24 в Иркутской области О народной традиции Крещенского купания в проруби В Китае зафиксировали вспышку метапневмовируса, поражающего лёгкие Забавные животные, которые вызовут улыбку и поднимут настроение (29 фото) Советские лайфхаки по сохранению продуктов, которыми пользовались наши мамы и бабушки Дома в Турции продолжают разрушаться уже после землетрясения Фиби Прайс хулиганит на улице в Лос-Анджелесе Соцопрос в Великобритании к 80-летию высадки союзников в Нормандии Водитель показал салон автобуса после школьной экскурсии Бесстрашный бразилец решил покурить на заправке и устроил огненный хаос Энергоэффективный дом для отдыха большой семьи на острове Олдерни