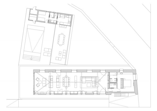
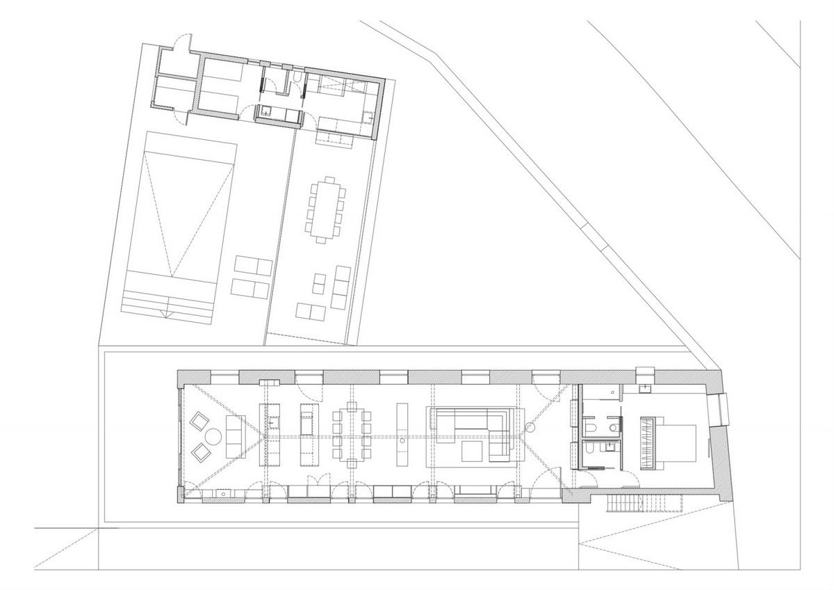
Проект реконструкции бывшей конюшни в загородный дом разработан архитектурным бюро Zooco Estudio и реализован в 2019 году в небольшом городке Гуэмес, провинция Кантабрия, Испания. Основная идея проекта заключалась в создании жилой резиденции с комфортными пространствами, наполненными естественным светом и тесно связанными с окружающей природой. Кроме реконструкции старого здания, когда-то служившего стойлом для домашних животных, проект включал в себя строительство отдельного одноэтажного блока, связанного с оригинальным домом верандой.

Вмешательство в оригинальное строение было основано на уважении и бережном отношении к его архитектуре. Первоначальное предназначение конюшни сохранено в простом деревенском облике здания, архитектура которого основана на несущих стенах и крыше из деревянных балок, покрытых черепицей. Самые значительные изменения коснулись восточного и южного фасадов, которые были почти полностью разрушены. Северный и западный фасады были отремонтированы и приобрели более современный вид. Новые большие окна открыли вид на горы и наполнили пространство естественным светом, а несколько стеклянных дверей обеспечили беспрепятственный выход из дома сразу во двор.Чтобы сохранить ощущение простора, от внутренних перегородок решили отказаться. Все пространство занимают линейно расположенные общественные зоны: кухня с дровяным камином, просторная столовая с деревянным обеденным столом, гостиная, центром которой является большой угловой диван нарядного белого цвета и домашний офис с библиотекой. Раздвижные стеклянные двери со стороны кухни связывают дом с открытой террасой. Деревянные жалюзи, при необходимости, обеспечивают конфиденциальность. Высокий потолок с открытой деревянной крышей и старыми деревянными балками создают особую деревенскую атмосферу, наполненную теплом и уютом. За деревянным стеллажом домашней библиотеки скрыта главная спальня с ванной и гардеробной. На верхнем этаже находится еще одна спальня.L-образная новая пристройка отличается более рациональной архитектурой, в то же время, сохраняющей простоту и строгость. Она отделена от существующего строения большой крытой верандой с прекрасно оборудованной зоной отдыха. Между двумя строениями оборудован открытый бассейн с деревянной палубой. Пристройка располагает гостевым номером и сауной.Общая площадь дома после реконструкции и расширения составила 310 квадратных метров. В дизайне экстерьера и интерьера используется много натуральных материалов, доминирующими среди которых являются местные дерево и камень. Металлическая конструкция и бетон создают современный контраст традиционной архитектуре. Открытая планировка, панорамное остекление и множество выходов из помещений во двор обеспечивают ощущение единства внешних и внутренних пространств.Сохранив типичную атмосферу кантабрийских домов, резиденция обладает всеми современными удобствами, что делает пребывание в нем комфортным и привлекательным.



































coolhouses.ru