Ансамбль из трёх треугольников, окружающих четырехугольник, названный авторами "K2 House", занимает участок в Токио на краю густой зоны деревянных домов, где промежутки между домами образуют зеленые дорожки, пропускающие ветер и свет. Дом стоит напротив оживленного открытого квартала, застроенного масштабной городской схемой, с детским садом и парком. Работа над проектом началась с мысли архитектора о садах: "Создание сада создает жизненный и городской пейзаж. Это может быть социальное поведение, к которому нужно приспособиться, персонализируя своё жизненное пространство и выражая свою индивидуальность".

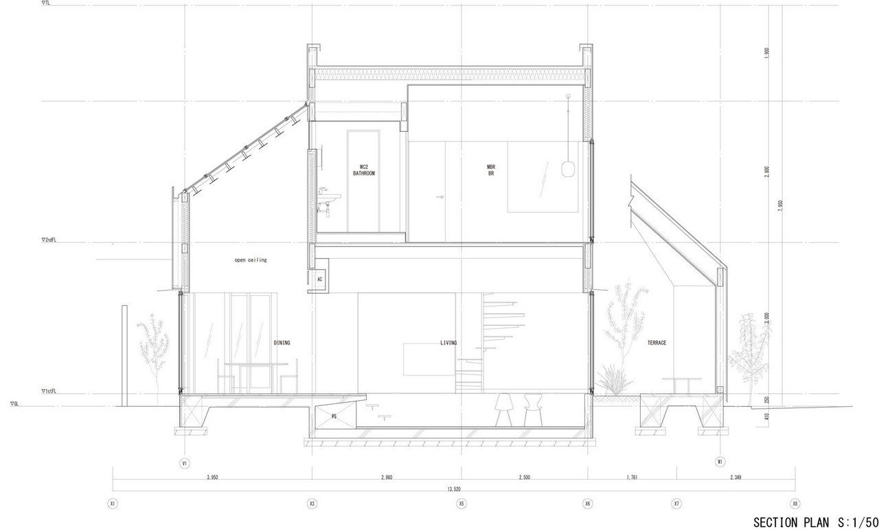
Заправляя четырехугольный объём в полутреугольную площадку, вырезаются три треугольных угла. Четырехугольный объем вмещает личные покои в верхней части, которая поднимается каркасом треугольных объёмов. Под частными помещениями неразделённая комната, включающая кухню/столовую/утопленную гостиную/полы с татами, выливается в треугольные углы, сливаясь с природными элементами за счёт щедрого остекления сверху и сбоку. Каждый из трёх треугольных объёмов отвечает городскому контексту. Восточный объём представляет собой крытую террасу с открытым садом, зажатым между восточным и четырехугольным объёмами. На террасе мало что видно, но есть намек на обитателей с улицы. Западный объём включает кухню/столовую, которая выходит на садовую полосу, ведущую к зелёным дорожкам по соседству. Северный объём формирует белое абстрактное пространство, фильтруя свет сверху.Эти три части воплощают игру дневного света, который меняется в зависимости от ритма солнца. Солнечные пятна разбросаны по всем объёмам и временами внутри кажется ярче, чем снаружи. Эта дневная драма подчёркивает впечатление перекрытия различных областей на первом этаже, размывая внутренние и внешние границы, создавая комфортное ощущение глубины и плавучести над верхней частью четырехугольного объёма. По мнению архитектора, "сад превращает жилую территорию человека в город, а ряд садов в городе представляет собой среду обитания человека". Направляя мысли обитателей в сады и за их пределы, дом поддерживает разворачивающуюся в медленном темпе их жизнь - новую жизнь на новом месте.























Название: Дом К2 (K2 House)Расположение: Сугинами, ЯпонияАрхитектура: A.A.E.Строительство: 2018Общая площадь: 101 м2Фото: Shigeo OgawaБлог "Частная Архитектура"